- Ref 9201111893
- Ref 1049
- Type Maison
- Ville FONTAINE SIMON
- Pièces 6
- Chambres 4
- Surface 160 m²
- Terrain 2640 m²
- Prix :
149 000 € *
FONTAINE-SIMON (28240) – Au cœur du Parc naturel régional du Perche, Maison de campagne d'environ 160 m2, en lisière de forêt.
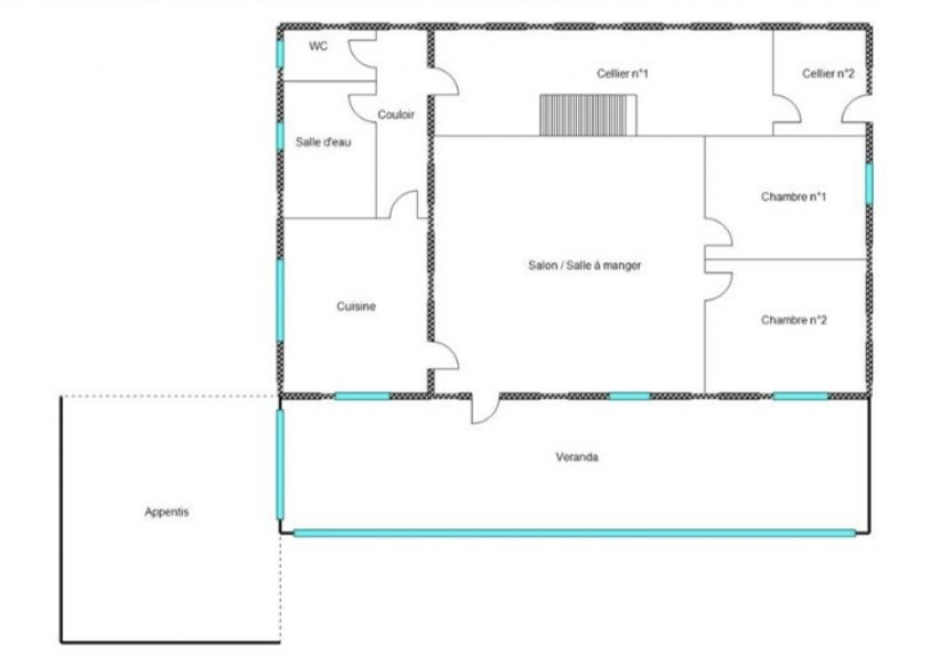
- Au rez-de-chaussée, un salon-cheminée, une grande cuisine dinatoire, 2 CHAMBRES, une salle d'eau, des toilettes séparées. Belle VERANDA offrant un cadre de vie unique et une vue imprenable sur le jardin.
- Au 1er étage, 2 CHAMBRES, des toilettes séparées, un grenier à aménager.
Chauffage gaz de ville – Tout-à-l'égout (assainissement conforme) - TOITURE NEUVE (mars 2025)
A RENOVER – BEAU POTENTIEL
Jardin arboré de plus de 2 640 m2 au calme avec beaux arbres fruitiers (cerisier, noyer, poiriers, pommiers, …)
DEPENDANCES, ATELIER - Carport 2 voitures
VUE DEGAGEE sur jardin et campagne.
Proche de toutes les commodités : commerces du village (boucherie, poste, épicerie, … Camping et activités de loisirs proches (téléski nautique et parc aquatique)
Proche gare de La Loupe reliant Paris, à moins de 10 km, desservie par des TER depuis Paris Montparnasse, trajets d'environ 1h20 min pour Paris . Idéal pour rejoindre également Chartres, Dreux et l'agglomération eurélienne.
Bretoncelles (~12 km),
Courville-sur-Eure (~17 km),
Nogent-le-Rotrou (~25 km)
En voiture, environ 1h40 min de Paris
A voir très vite !
Pour toute demande de renseignements et visites, contactez Caroline LOGEAIS - 5 PIECES ET PLUS, 1ère agence immobilière spécialisée dans les biens familiaux de minimum 3 CHAMBRES (Paris, Ile-de-France / Bordeaux, Bassin d'Arcachon) www.5piecesetplus.com (réf. 9201111893) Prix TTC et Honoraires à charge vendeur TTC .
Prix TTC et Honoraires à charge vendeur TTC
Les informations sur les risques auxquels ce bien est exposé sont disponibles sur le site georisques.gouv.fr
* Honoraires charge vendeur.

Montant estimé des dépenses annuelles d'énergie pour un usage standard: entre 3 773,00€ et 5 105,00€ par an.Prix moyens des énergies indexés sur les années 2021, 2022 et 2023 (abonnement compris)
Pour obtenir le numéro de téléphone de l'agence, remplissez le formulaire de demande de complément d'informations.
- 38
- 53
- Bien
- 0
- 0
- /images/ggmap-marker.png
- click
-
MaisonFONTAINE SIMON - 160 m²
92300 LEVALLOIS PERRET
Tel. 06 63 55 66 08
Fax 04 67 70 95 48




















