- Ref 85002116792
- Ref 31826
- Type Maison
- Ville SULLY SUR LOIRE
- Pièces 5
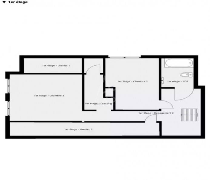
- Chambres 3
- Surface 126 m²
- Terrain 120 m²
- Prix :
82 500 € *
Maison Loirétaine à Rénover – Sully-sur-Loire, 126m² – 5 pièces – Emplacement Idéal !
À deux pas du centre-bourg historique de Sully-sur-Loire, de son majestueux château et des bords de Loire, venez découvrir cette maison pleine de potentiel de 126 m², idéale pour un premier achat ou un projet d’investissement.
Les atouts du bien :
• 5 pièces , dont 3 chambres spacieuses et lumineuses à l’étage
• Belles surfaces offrant de nombreuses possibilités d’aménagement
• Espace de rangement supplémentaire à l’étage
• Cave en sous-sol : idéale pour le stockage
• Salle de bain existante, à repenser selon vos envies et une salle d'eau en RDC.
Prévoir une rénovation esthétique de l’intérieur pour révéler tout le cachet de cette maison ancienne. Des travaux énergétiques sont également à envisager pour optimiser confort et performance.
Localisation privilégiée :
Située dans un secteur calme et recherché, à proximité immédiate des commodités, des écoles et du patrimoine local. Profitez du charme des bords de Loire tout en étant à quelques minutes à pied du centre-ville et de ses commerces.
Un projet à fort potentiel pour les amateurs d’ancien et de travaux ou pour les investisseurs en quête d’un bien à valoriser !
Contactez votre Agent AXO - L'immobilier Actif au 06 18 55 76 74, Stéphane RIGUERA (EI) Agent Commercial RSAC 843.313.016 Orléans. Plus d'informations sur www.axo.immo (réf. 85002116792).
Honoraires : 7 500 € TTC (10 %) inclus charge acquéreur (75 000 € hors honoraires).
Les informations sur les risques auxquels ce bien est exposé sont disponibles sur le site Géorisques : https://www.georisques.gouv.fr/
* Honoraires : 10% TTC inclus charge acquéreur (75 000 € hors honoraires).

Montant estimé des dépenses annuelles d'énergie pour un usage standard: entre 5 870,00€ et 7 980,00€ par an.
Prix moyen des énergies indexés au 01/01/2021 (abonnement compris)
Pour obtenir le numéro de téléphone de l'agence, remplissez le formulaire de demande de complément d'informations.
- 38
- 53
- Bien
- 47.761649
- 2.3717642
- /images/ggmap-marker.png
- click
-
MaisonSULLY SUR LOIRE - 126 m²
49000 ANGERS
Tel. 02 41 39 10 00
Fax 04 67 70 95 48




















