- Ref 75011171654
- Ref 27266
- Type Appartement
- Ville BARBIZON
- Pièces 5
- Chambres 3
- Surface 127 m²
- Terrain NC
- Prix :
990 000 € *
Un appartement avec terrasse dans une villa historique à Barbizon.
Ce duplex fait partie du projet de réhabilitation contemporaine d’une villa historique des années 1920 par l’agence d’architecture Ciguë, qui prévoit la division de l’édifice en quatre appartements d’exception au sein d’un cadre exceptionnel en lisière de la forêt de Fontainebleau, dans le village de Barbizon.
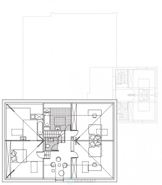
Aux 1er et 2e étages de la villa, cet appartement déploie une surface de 127 m² et profite de 57 m² d’espaces extérieurs répartis sur 3 balcons et une grande terrasse.
L’espace de vie occupe la majeure partie du premier niveau et comprend un séjour – salle à manger et une cuisine ouverte avec îlot central, donnant accès à une terrasse qui surplombe la forêt.
L’étage se compose d’une grande suite avec WC séparés et salle de bain ainsi que 2 autres chambres avec salle de bain. Une bibliothèque vient compléter ce niveau.
Au sous-sol, des caves ainsi que des espaces de stockage privés sont à disposition des habitants.
Ils profiteront également des équipements exceptionnels du projet « La Lisière » voisin, comme une piscine écologique et des potagers partagés, ainsi qu’un accès direct à la forêt de Fontainebleau.
La propriété profite d’un environnement naturel préservé et d’une localisation exceptionnelle en lisière de la forêt de Fontainebleau, dans le village de Barbizon, haut lieu de l’histoire artistique française..
Accessible par une grande allée bordée de platanes, la villa profite de toutes les commodités de proximité du village : commerces, école, pharmacie, médecin, poste, loisirs sont à 15 minutes à pied, 5 minutes en vélo ou 4 minutes en voiture. Paris est accessible à moins de 50 minutes en voiture ou en train.
Sextant France - 06 83 91 16 81 - Plus d'informations sur www.sextantfrance.fr réf. 27266
* Honoraires charge vendeur.
Pour obtenir le numéro de téléphone de l'agence, remplissez le formulaire de demande de complément d'informations.
- 38
- 53
- Bien
- 48.4452388
- 2.6061125
- /images/ggmap-marker.png
- click
-
AppartementBARBIZON - 127 m²
92200 NEUILLY SUR SEINE
Tel. 01 84 78 46 60
Fax 04 67 70 95 48
















