- Ref 75011167540
- Ref 25003
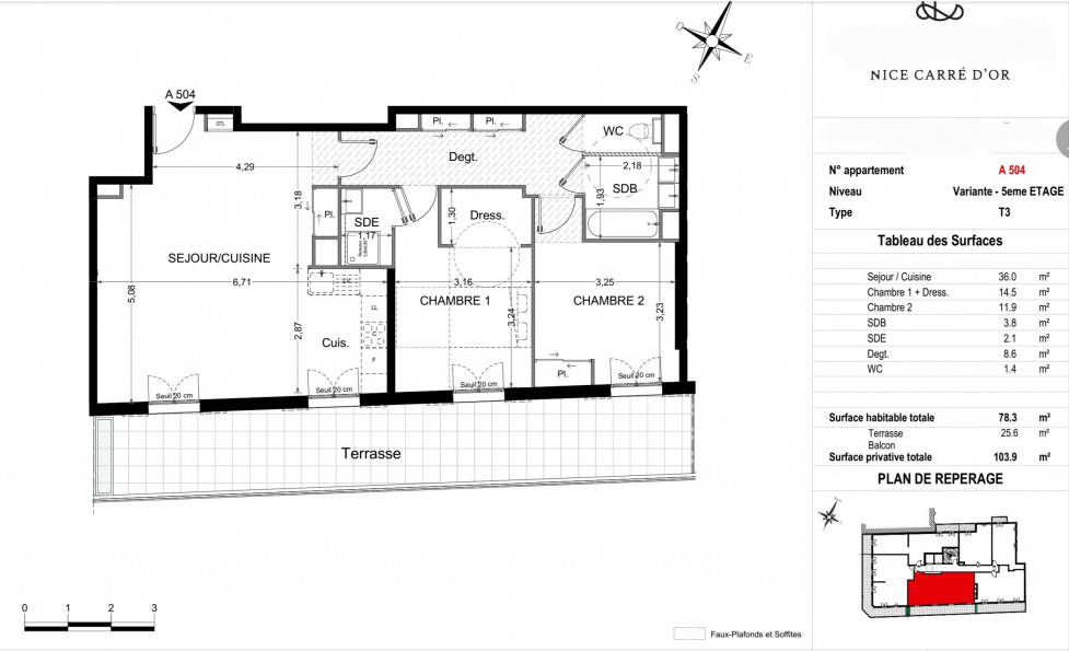
- Type Appartement
- Ville NICE
- Pièces 3
- Chambres 2
- Surface 78 m²
- Terrain NC
- Prix :
1 300 000 € *
Au 6ème et dernier étage d’une résidence neuve haut de gamme, découvrez ce magnifique 3 pièces spacieux et lumineux, offrant une grande terrasse avec une vue dégagée sur les toits de Nice et la ville.
Située dans le prestigieux Carré d’Or, à seulement quelques pas de Nice Étoile, Galeries Lafayette, des restaurants, boutiques et à 10 minutes à pied des plages et du Vieux-Nice, cette adresse réunit confort de vie, élégance et centralité.
La résidence, au style niçois contemporain, se compose de seulement 29 appartements et propose des prestations de standing, un parking sécurisé et l’offre spéciale-frais de notaire offerts.
Livraison prévue 4 trimestre 2025 – Idéal pour une résidence principale, secondaire ou un investissement patrimonial.
Derniers lots disponibles – à partir de 990 000 €.
Offre spéciale en cours — Contactez-nous vite pour en profiter !
* Honoraires charge vendeur.
Pour obtenir le numéro de téléphone de l'agence, remplissez le formulaire de demande de complément d'informations.
- 38
- 53
- Bien
- 43.694773
- 7.254637
- /images/ggmap-marker.png
- click
-
AppartementNICE - 78 m²
92200 NEUILLY SUR SEINE
Tel. 01 84 78 46 60
Fax 04 67 70 95 48
















