- Ref 740281553
- Ref A106
- Type Appartement neuf
- Ville ANNECY
- Pièces 4
- Chambres 3
- Surface 79 m²
- Terrain NC
- Prix :
504 000 € *
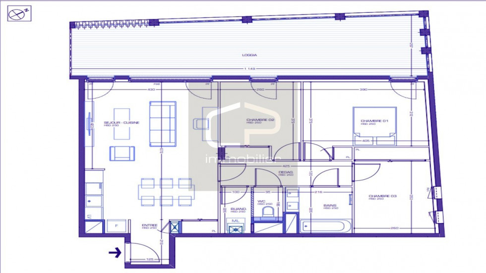
Vente appartement T4 lumineux – Annecy / Meythet (74960) – Terrasse 30 m² – Garage inclus
Surface : 79,91 m² • 3 chambres • Résidence récente aux dernières normes
Découvrez en plein centre de Meythet, sur la commune d’Annecy, ce superbe appartement T4 de 79,91 m² situé dans une résidence récente, construite selon les dernières normes énergétiques (RT 2012 / RE 2020).
Un emplacement idéal : petite rue calme, toutes les commodités accessibles à pied, et un cadre de vie recherché aux portes d’Annecy centre.
Un appartement lumineux, moderne et fonctionnel
L’aménagement a été pensé pour offrir volume, confort et luminosité :
Séjour / cuisine de 30,19 m², baigné de lumière
Immense terrasse de 30,47 m², accessible depuis le séjour et deux chambres
3 chambres, toutes équipées de rangements intégrés
Salle de bain indépendante
WC séparé
Buanderie indépendante, très pratique au quotidien
Dans une résidence neuve et parfaitement entretenue, vous profitez d’un confort moderne : isolation performante, normes acoustiques renforcées, faibles consommations énergétiques, ascenseur, espaces sécurisés…
Un environnement recherché : Annecy – Quartier Meythet
Plein centre de Meythet, à deux pas des commerces, écoles et transports
Rue calme, peu passante
Proximité immédiate d’Annecy centre, accès autoroute rapide, zone commerciale à quelques minutes
Idéal pour une vie de famille ou un investissement locatif premium
Garage inclus dans le prix
L’appartement est vendu avec un garage privatif, un atout rare et très recherché sur le secteur.
Un T4 récent, lumineux, au calme avec grande terrasse – une opportunité rare à Annecy / Meythet
Contactez CP Immobilier, votre agence immobilière spécialisée sur Annecy, pour organiser une visite et découvrir ce bien exceptionnel.
* Honoraires charge vendeur.
Pour obtenir le numéro de téléphone de l'agence, remplissez le formulaire de demande de complément d'informations.
- 38
- 53
- Bien
- 45.915048
- 6.093109
- /images/ggmap-marker.png
- click
-
Appartement neufANNECY - 79 m²
74000 ANNECY
Tel. 0450644169
Fax 04 67 70 95 48








