- Ref 7400235438
- Ref PYRAMIDE /LOT 4 - MAISON JUMELEE
- Type Maison en vefa
- Ville METZ TESSY
- Pièces 5
- Chambres 4
- Surface 89 m²
- Terrain 168 m²
- Prix :
572 000 € *
Découvrez "Le Clos Blanc", un nouveau projet immobilier situé sur la commune de METZ TESSY, à seulement quelques minutes d'Annecy, où vous pourrez trouver votre bonheur avec ce LOT 4, une maison mitoyenne avec son jardin privatif de 89m², comprenant :
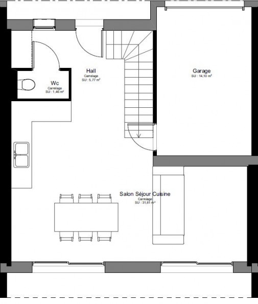
- Au RDC : un Hall, un WC et une pièce de vie de 32m²
- Au 1er : un Dégagement, une SDB, un WC et 4 chambres
Vous profiterez d'un jardin privatif ouvert sur le salon, idéal pour les beaux jours.
En Annexes vous disposerez d'un garage attenant à la maison et 2 stationnements extérieurs
Concernant les prestations, elles sont de qualités avec des fenêtres et portes-fenêtres en PVC double vitrage avec volets roulants, des baies vitrés en Alu avec BSO (volet orientable), carrelage au sol en 60x60 dans la pièce de vie ainsi que dans les pièces d'eau, porte intérieures fin de chantier et porte d'entrée 3 points.
Pour répondre au normes RE2020, la maison sera chauffé au sol par une pompe à chaleur au niveau du RDC et par radiateur à l'étage.
Situé sur une commune dynamique et paisible, idéalement situé entre la frontière suisse et les grandes agglomérations françaises, offrant un cadre de vie agréable avec un accès facile aux commodités et aux transports. Proche d'Annecy (à seulement 5 min), de Genève (à 15km) et de l'autoroute A41, c'est le compromis parfait entre vie à la campagne et proximité urbaine.
Les écoles, commerces de proximité, et services publics sont également présents pour faciliter le quotidien des familles.
Prix de Vente : 572.000€ HAI - Frais de Notaire réduit (2.5%) - Eligible au Prêt à Taux Zéro
Pour plus d’informations ou pour organiser une visite, contactez-nous dès maintenant !
Bien Non soumis au DPE - Les informations sur les risques auxquels ce bien est exposé sont disponibles sur le site Géorisques : www.georisques.gouv.fr.
Bien soumis au statut juridique de la copropriété. Nb de lot :5.
* Honoraires charge vendeur.
Pour obtenir le numéro de téléphone de l'agence, remplissez le formulaire de demande de complément d'informations.
- 38
- 53
- Bien
- 45.9396906
- 6.1064643
- /images/ggmap-marker.png
- click
-
Maison en vefaMETZ TESSY - 89 m²
74000 ANNECY
Tel. 04 50 01 84 34
Fax 04 67 70 95 48










