- Ref 73028799
- Ref V LNT/C601
- Type Appartement
- Ville AIX LES BAINS
- Pièces 3
- Chambres 2
- Surface 75 m²
- Terrain NC
- Prix :
528 000 € *
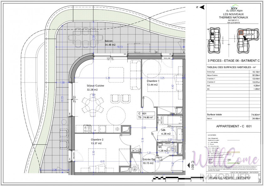
À Aix-les-Bains, dans la prestigieuse résidence « Les Nouveaux Thermes » - Découvrez cet appartement 3 pièces de 74,80m² située au 6ème étage côté Nord-Est du bâtiment SUD.
Cet appartement haut de gamme comprend : entrée/dégagement, séjour cuisine de 32,28m² et prolongée par un balcon végétalisé de 34,38m² côté Nord-Est.
L’espace nuit comprend 2 chambres (13,37m² et 13,44m²), une salle de bains, un wc.
Box en sous-sol sécurisé inclus.
La résidence se distingue par ses prestations premium et son engagement environnemental : façades végétalisées sur 3,5 km, plus de 15 000 plantes, toitures vertes, récupération des eaux pluviales et planchers chauffants/rafraîchissants par géothermie.
Contactez votre agence WellCome Immobilier pour réserver cet appartement d’exception parmi les lots disponibles ! D’autres appartements neufs du T1 au T6 sont également proposés.
Frais de notaire réduits
Programme certifié RE2020 seuil 2022 & NF Habitat HQE
Livraison prévue 1er trimestre 2029 Surface CARREZ : 74.8 m²
Bien soumis au statut juridique de la copropriété. Nb de lot :219.
* Honoraires charge vendeur.

Montant estimé des dépenses annuelles d'énergie pour un usage standard: entre 1,00€ et 1,00€ par an.Prix moyens des énergies indexés sur les années 2021, 2022 et 2025 (abonnement compris)
Pour obtenir le numéro de téléphone de l'agence, remplissez le formulaire de demande de complément d'informations.
- 38
- 53
- Bien
- 45.6884645523
- 5.91618061066
- /images/ggmap-marker.png
- click
-
AppartementAIX LES BAINS - 75 m²
73100 AIX LES BAINS
Tel. 0479524276
Fax 04 67 70 95 48




















