- Ref 73028773
- Ref V LNT/C403
- Type Appartement
- Ville AIX LES BAINS
- Pièces 2
- Chambres 1
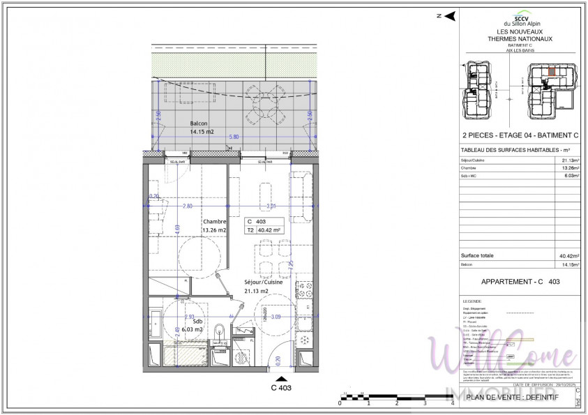
- Surface 40 m²
- Terrain NC
- Prix :
268 900 € *
À Aix-les-Bains, dans la prestigieuse résidence « Les Nouveaux Thermes » - Découvrez cet appartement neuf 2 pièces de 40,42m² située au 4ème étage côté Est.
Cet appartement haut de gamme comprend : séjour cuisine et prolongée avec balcon végétalisée de 14,15m² orienté Est, une chambre, une salle de bains avec wc.
Vendu avec une place de stationnement en sous-sol sécurisé
La résidence se distingue par ses prestations premium et son engagement environnemental : façades végétalisées sur 3,5 km, plus de 15 000 plantes, toitures vertes, récupération des eaux pluviales et planchers chauffants/rafraîchissants par géothermie.
Contactez votre agence WellCome Immobilier pour réserver cet appartement d’exception parmi les premiers lots disponibles !
Frais de notaire réduits
Programme certifié RE2020 seuil 2022 & NF Habitat HQE
Livraison : 1er Trimestre 2029 Surface CARREZ : 40.42 m²
Bien soumis au statut juridique de la copropriété. Nb de lot :219.
* Honoraires charge vendeur.
Pour obtenir le numéro de téléphone de l'agence, remplissez le formulaire de demande de complément d'informations.
- 38
- 53
- Bien
- 45.6884645523
- 5.91624498367
- /images/ggmap-marker.png
- click
-
AppartementAIX LES BAINS - 40 m²
73100 AIX LES BAINS
Tel. 0479524276
Fax 04 67 70 95 48


















