- Ref 730281059
- Ref 7302848 altarea S/C05
- Type Appartement
- Ville COGNIN
- Pièces 3
- Chambres 2
- Surface 60 m²
- Terrain 29 m²
- Prix :
261 000 € *
À Cognin, aux portes de Chambéry, à seulement 7 minutes du centre-ville, découvrez la nouvelle résidence « SCALA », idéalement située dans un secteur résidentiel recherché, à proximité immédiate des commodités (commerces, écoles, transports) et offrant de belles vues dégagées sur les reliefs montagneux.
Profitez d’une offre en cours avec frais de notaire réduits, pour une livraison prévue au 2ème trimestre 2028, actable dès maintenant.
Cette résidence à l’architecture élégante se compose de 5 bâtiments de 6 étages maximum, parfaitement intégrés dans un environnement verdoyant avec cœur d’îlot paysager, offrant un cadre de vie agréable entre nature et ville.
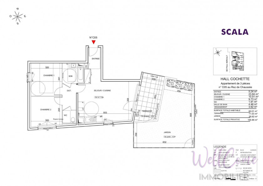
Nous vous proposons ici un appartement 3 pièces de 60 m², situé au RDC, conçu pour offrir confort, fonctionnalité et luminosité naturelle.
Il se compose de :
Une entrée (5,24 m²)
Un séjour avec cuisine ouverte (23,84 m²)
Une chambre 1 (10,91 m²)
Une chambre 2 (9,73 m²)
Une salle de bain (4,46m²)
WC (m 1,91²)
Dégagement (3,92m²)
Vendu avec box électrique privative en sous-sol, l’appartement bénéficie également d’un accès à un local à vélos au sein d’une résidence sécurisée.
Idéal pour habiter, réaliser un premier achat, disposer d’un pied-à-terre ou investir dans une ville dynamique aux portes des Alpes.
Contactez-nous dès maintenant pour en savoir plus et réserver votre futur appartement parmi les premiers lots disponibles !
Programme certifié NF Habitat et conforme à la RT 2012.
Éligible aux dispositifs Pinel (zone B1), PTZ, LLI, LMNP et LMP.
Bien soumis au statut de la copropriété – 140 lots (hors annexes).
Aucune procédure en cours.
Prix TTC – Honoraires à la charge du vendeur. Surface CARREZ : 60.01 m²
Bien soumis au statut juridique de la copropriété. Nb de lot :28.
* Honoraires charge vendeur.
Pour obtenir le numéro de téléphone de l'agence, remplissez le formulaire de demande de complément d'informations.
- 38
- 53
- Bien
- 45.562206
- 5.8951805
- /images/ggmap-marker.png
- click
-
AppartementCOGNIN - 60 m²
73100 AIX LES BAINS
Tel. 0479524276
Fax 04 67 70 95 48












