- Ref 4901051166
- Ref 2595
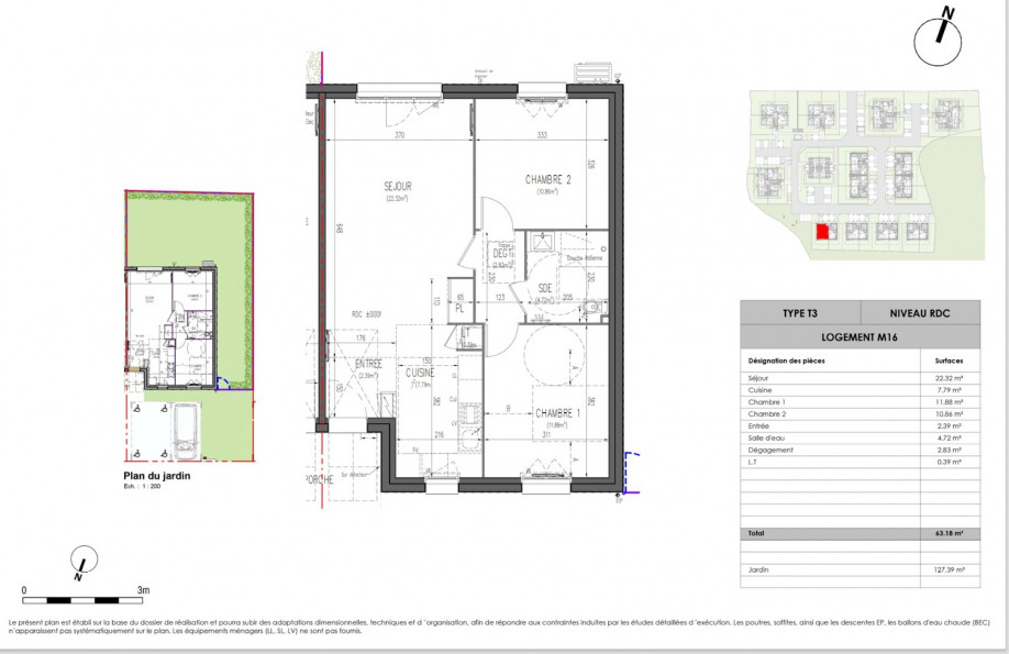
- Type Maison en vefa
- Ville LA LIMOUZINIERE
- Pièces 3
- Chambres 2
- Surface 63 m²
- Terrain 237 m²
- Prix :
199 900 € *
VEFA - Découvrez "le Domaine de Bellevue" votre nouvel havre de paix dans une commune résidentielle où il fait bon vivre situé à l'angle de Belle vue , rue de la Moncire, 44310 La Limouzinière .
Le domaine de Bellevue est idéalement situé entre Nantes et Challans offrant un accès facile au dynamisme environnant grâce à la proximité immédiate de la D63.
Situé à proximité des écoles ( maternelle, primaire ) ,commerces, et transports , complexes sportifs et parc naturel .
L'agence Revo Immo présente la commercialisation d'une maison T3 d'une superficie de 63 m² ,elle est composée d'un séjour/cuisine , salle d'eau et deux chambres et un jardin pour se détendre d'une superficie de 127m².
Ce programme neuf sera livré le 4ème trimestre 2027
Ne manquez pas cette opportunité de vivre dans un cadre préservé où le confort et la nature se rencontrent pour créer un cadre de vie agréable .
N'hésitez pas à me contacter pour découvrir votre futur lieu de vie à La Limouzinière .
SAS REVO IMMO - BEDOU Bastien EI - O684 500 553 - Plus d'informations sur www.revo.immo (réf. 4901051166). Agent commercial RSAC NANTES 912 299 351 - Prix TTC et Honoraires à charge vendeur TTC - Les informations sur les risques auxquels ce bien est exposé sont disponibles sur le site Géorisques : https://www.georisques.gouv.fr/.
* Honoraires charge vendeur.
Pour obtenir le numéro de téléphone de l'agence, remplissez le formulaire de demande de complément d'informations.
- 38
- 53
- Bien
- 46.9931744
- -1.59611889998
- /images/ggmap-marker.png
- click
-
Maison en vefaLA LIMOUZINIERE - 63 m²
49610 LES GARENNES SUR LOIRE
Tel. 0252 352 462
Fax 04 67 70 95 48










