- Ref 4901050380
- Ref 2002
- Type Appartement
- Ville CHOLET
- Pièces 2
- Chambres 1
- Surface 60 m²
- Terrain NC
- Prix :
157 500 € *
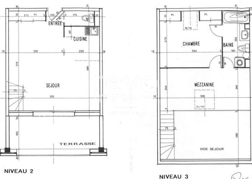
Idéalement situé, venez découvrir cet agréable et lumineux appartement à 2 pas de la place Travot au 2ème étage de la résidence ALTAIR.
Il est composé d'une pièce de vie avec coin cuisine de 28m² donnant sur une terrasse de 12 m² avec store banne électrique. WC.
En duplex, vous trouverez une mezzanine de 13 m², une chambre et une salle d'eau, wc.
Les plus de cet appartement : une place de parking dans le garage fermé du RDC de la résidence. Ascenseur. Placard intégré dans chaque pièce, Exposition Sud Est.
Charges de copro mensuelles : 105 euros environ
Locataire en place
Cet appartement vous interesse, n'hésitez pas à m'appeler pour organiser une visite.
Je vous propose une visite virtuelle sur demande
Surface CARREZ : 60.2 m² SAS REVO IMMO - SEBAI Heidi EI - O672 175 087 - Plus d'informations sur www.revo.immo (réf. 4901050380). Agent commercial RSAC ANGERS 889 982 005 Bien soumis au statut juridique de la Copropriété. Nb de lots : 143. Charges annuelles de copropriété (Montant moyen annuel quote-part du budget prévisionnel vendeur) : 1 247 €. Pas de procédure en cours.
- Honoraires : 7 500 € TTC (4,76 %) inclus charge acquéreur (157 500 € hors honoraires) - Les informations sur les risques auxquels ce bien est exposé sont disponibles sur le site Géorisques : https://www.georisques.gouv.fr/. Surface Carrez : 60,20 m².
* Honoraires : 5% TTC inclus charge acquéreur (150 000 € hors honoraires).

Montant estimé des dépenses annuelles d'énergie pour un usage standard: entre 780,00€ et 1 100,00€ par an.Prix moyens des énergies indexés sur les années 2021, 2022 et 2023 (abonnement compris)
Pour obtenir le numéro de téléphone de l'agence, remplissez le formulaire de demande de complément d'informations.
- 38
- 53
- Bien
- 47.063334
- -0.87401799996
- /images/ggmap-marker.png
- click
-
AppartementCHOLET - 60 m²
49610 LES GARENNES SUR LOIRE
Tel. 0252 352 462
Fax 04 67 70 95 48




















