- Ref 4402167968
- Ref 3947
- Type Appartement
- Ville Nantes
- Pièces 5
- Chambres 3
- Surface 93 m²
- Terrain NC
- Prix :
327 590 €
NANTES
Situé au calme et proche de l'église Sainte-Thérèse. Appartement lumineux et en parfait état. En étage avec ascenseur.
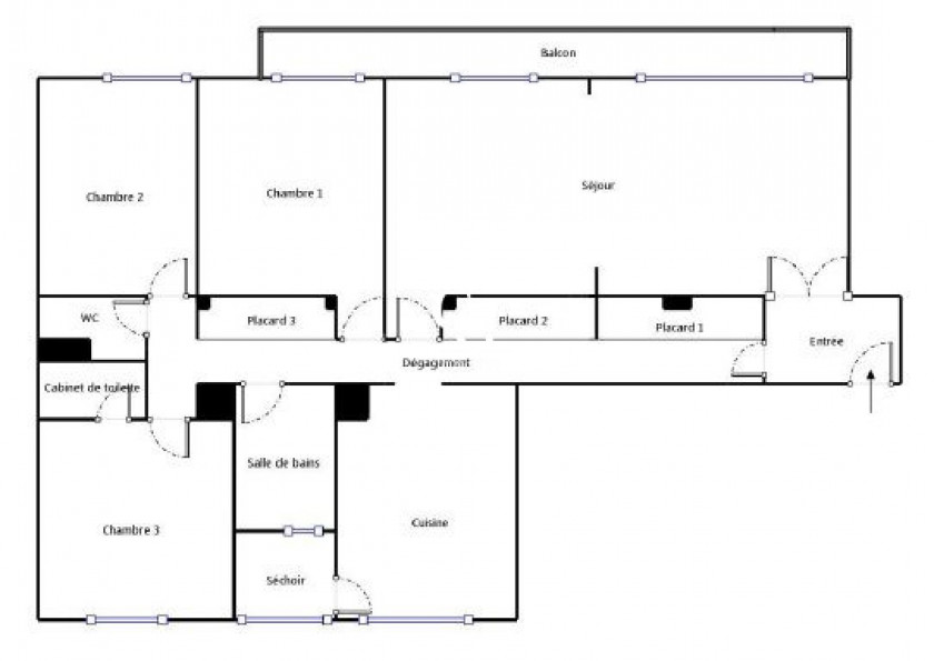
Appartement de 95 m² au sol composé d'une grande pièce de vie avec accès à un balcon ensoleillée et sans vis à vis.
3 chambres (possibilité 4), cuisine aménagée et équipée, loggia, salle d'eau et wc séparé.
Beaucoup de rangements intérieurs.
Place de parking, cave et grand jardin collectif sécurisé.
LUMIERE, PARKING, CALME, BALCON AVEC VUE DEGAGEE ET SANS VIS A VIS.
Proche des commerces et tramway.
Bien soumis au statut de la copropriété. Pas de procédure en cours.
Prix FAI : 327 590 € - 315 000 € hors honoraires, dont 4 % d'honoraires TTC à la charge de l'acquéreur.
CABINET GUÉMENÉ - NANTES
1 rue des Salorges 44100 NANTES
Tél : 02-40-71-91-92
Les informations sur les risques auxquels ce bien est exposé sont disponibles sur le site Géorisques : 'www.georisques.gouv.fr'
Honoraires inclus de 4% TTC à la charge de l'acquéreur. Prix hors honoraires 315 000 €. Dans une copropriété de 234 lots. Aucune procédure n'est en cours. Classe énergie C, Classe climat B Montant estimé des dépenses annuelles d'énergie pour un usage standard : entre 1100.00 € et 1540.00 € sur les années 2021, 2022 et 2023 (abonnements compris). Les informations sur les risques auxquels ce bien est exposé sont disponibles sur le site Géorisques : georisques.gouv.fr.
Votre conseiller Cabinet GUÉMENÉ - Nantes : Paulo MARQUES
Agent commercial (Entreprise individuelle)
RSAC 2010AC000135
RCP ACI06356

Montant estimé des dépenses annuelles d'énergie pour un usage standard: entre 1 100,00€ et 1 540,00€ par an.
Pour obtenir le numéro de téléphone de l'agence, remplissez le formulaire de demande de complément d'informations.
- 38
- 53
- Bien
- 47.2185047
- -1.54465829999
- /images/ggmap-marker.png
- click
-
AppartementNantes - 93 m²
44300 NANTES
Tel. 02 40 49 18 10
Fax 04 67 70 95 48
















