- Ref 4402164994
- Ref MT4579-CABINETGUEMENE
- Type Appartement
- Ville Nantes
- Pièces 1
- Chambres NC
- Surface 26 m²
- Terrain NC
- Loyer Charges Comprises :
460 € par mois * - * Dont provisions sur charges : 48 € par mois
(régularisation annuelle)
Honoraires charge locataire : 412 € TTC
Dépôt de garantie : 412 €
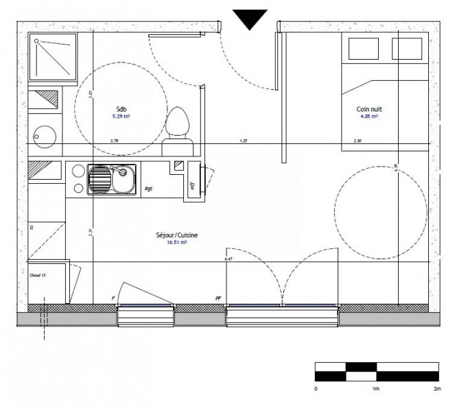
NANTES ROND-POINT DE RENNES, Rue Léon Jost. A louer avec le cabinet Guémené un appartement T1 de 26,65 m² au 2ème étage avec ascenseur. Il dessert une entrée, une pièce principale exposée sud de 16,51 m² avec kitchenette, un coin nuit, et une salle d'eau avec WC.
Annexes : une place de stationnement en sous-sol.
Chauffage et production d'eau chaude individuels gaz.
Les charges comprennent l'entretien des parties communes, l'entretien de la chaudière et la taxe d'ordures ménagères. Libre le 24 décembre 2025.
Honoraires de 412 € TTC à la charge du locataire comprenant 78 € TTC pour l'état des lieux. Loyer de base 412 €/mois. Provision sur charges 48 €/mois, régularisation annuelle. Dépôt de garantie 412 €. Classe énergie C, Classe climat C Montant moyen estimé des dépenses annuelles d'énergie pour un usage standard, établi à partir des prix de l'énergie de l'année 2021 : entre 288.00 et 390.00 €. Les informations sur les risques auxquels ce bien est exposé sont disponibles sur le site Géorisques : georisques.gouv.fr.

Montant estimé des dépenses annuelles d'énergie pour un usage standard: entre 288,00€ et 390,00€ par an.
Prix moyen des énergies indexés au 01/01/2021 (abonnement compris)
Pour obtenir le numéro de téléphone de l'agence, remplissez le formulaire de demande de complément d'informations.
- 38
- 53
- Bien
- 47.2336281
- -1.50889339996
- /images/ggmap-marker.png
- click
-
AppartementNantes - 26 m²
44300 NANTES
Tel. 02 40 49 18 10
Fax 04 67 70 95 48














