Disponibilité
- Ref 40013460
- Ref 362
- Type Terrain en lotissement
- Ville PONTENX LES FORGES
- Pièces NC
- Chambres NC
- Surface NC
- Terrain 593 m²
- Prix :
97 000 € *
Situé à quelques minutes de la commune de Mimizan et des plages de sable fin, ce magnifique terrain à bâtir vous attend sur la commune de Pontenx-Les-Forges.
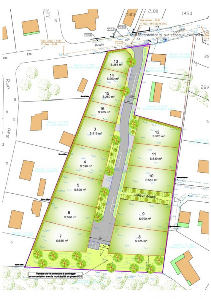
Vendu viabilisé en eau et éléctricité et il compose l'un des 14 lots d'un petit lotissement intimiste situé à deux pas du coeur du village.
Prêt à bâtir, ce terrain plat ( lot 6 ) saura parfaitement répondre à votre projet de vie grace à sa surface plancher autorisée de 250m2.
Une réelle opportunité à saisir !
Les informations sur les risques auxquels ce bien est exposé sont disponibles sur le site Géorisques
* Honoraires charge vendeur.
Diagnostic de
Performance énergétique
Contactez l'agence
Pour obtenir le numéro de téléphone de l'agence, remplissez le formulaire de demande de complément d'informations.
Autour de ce bien :
Découvrez les écoles, hopitaux, commerces ... à proximité
x
- 38
- 53
- Bien
- 44.2412477
- -1.12108129997
- /images/ggmap-marker.png
- click
-
Terrain en lotissementPONTENX LES FORGES - NC
SAS Lasserre Moras Immobilier
26 Rue du Belvédère40200 MIMIZAN
Tel. 0680724742
Fax 04 67 70 95 48






