•  

    Offres immobilieres 3700547 Centre Indre-et-Loire (37100) N° 3700547

Menu
location Bureau Tours - Photo 1
«
»
Ce bien
vous intéresse ?
Bureau
TOURS
Loyer Hors Charges : 3 648.31 € par mois *
location Bureau Tours
Pas d'image disponible
Pas d'image disponible
Pas d'image disponible
Pas d'image disponible
Pas d'image disponible
Pas d'image disponible
Pas d'image disponible
Pas d'image disponible
Pas d'image disponible
 
 
location Bureau Tours
Pas d'image disponible
Pas d'image disponible
Pas d'image disponible
Pas d'image disponible
Pas d'image disponible
Pas d'image disponible
Pas d'image disponible
Pas d'image disponible
Pas d'image disponible
  • Type Bureau
  • Ville TOURS
  • Loyer Hors Charges : 3 648.31 € par mois *

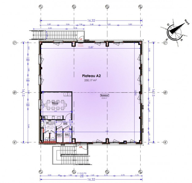
Emplacement stratégique – Très belle visibilité – Accès A10 / Périphérique Ouest

Situé au sein de la zone d’activités Pôle Nord Entreprises, ce plateau de bureaux neuf bénéficie d’un emplacement premium à Tours Nord, dans un environnement professionnel dynamique, à proximité immédiate des commerces et services.

Les atouts du bien :
Excellente accessibilité : bus n°2 (BHNS), autoroute A10 et périphérique Ouest
Très belle visibilité depuis un axe passant
Bureaux neufs au 1er étage d’un immeuble récent
Surface totale : 250,17 m² à aménager selon vos besoins
Prestations existantes : sanitaires réalisés, isolation périphérique, VMC installée
Aménagement possible par le bailleur selon votre cahier des charges
Disponibilité immédiate

Conditions financières :
Loyer : 175 € HT/m²/an + charges
Honoraires à la charge du preneur : 15 % HT du loyer annuel HT

Contactez-nous dès aujourd’hui pour plus d’informations ou pour organiser une visite.

Les informations sur les risques auxquels ce bien est exposé sont disponibles sur le site Géorisques

Diagnostic de
Performance énergétique
DPE GES
Contactez l'agence

Pour obtenir le numéro de téléphone de l'agence, remplissez le formulaire de demande de complément d'informations.

* Champs oligatoires

Autour de ce bien :
Découvrez les écoles, hopitaux, commerces ... à proximité
Santé
Commerces
Education
Divertissements
Services
x
* adresse précise non-diffusée
Pour obtenir l'adresse, contactez l'agence
  • 38
  • 53
  • Bien
  • 47.417464
  • 0.706099499995
  • /images/ggmap-marker.png
  • click
  • Bureau
    TOURS