- Ref 3700528
- Ref 28
- Type Bâtiment
- Ville TOURS
- Pièces NC
- Chambres NC
- Surface 3470 m²
- Terrain NC
- Loyer Hors Charges :
47 724.05 € par mois * - * Provisions sur charges : 0 € par mois
(régularisation annuelle)
Honoraires charge locataire : 99 999.99 €
Dépôt de garantie : 143 172.15 €
Découvrez un futur ensemble immobilier tertiaire RE 2020 à Tours Nord, composé de 2 immeubles de bureaux en R+4, livrés aménagés et non cloisonnés.
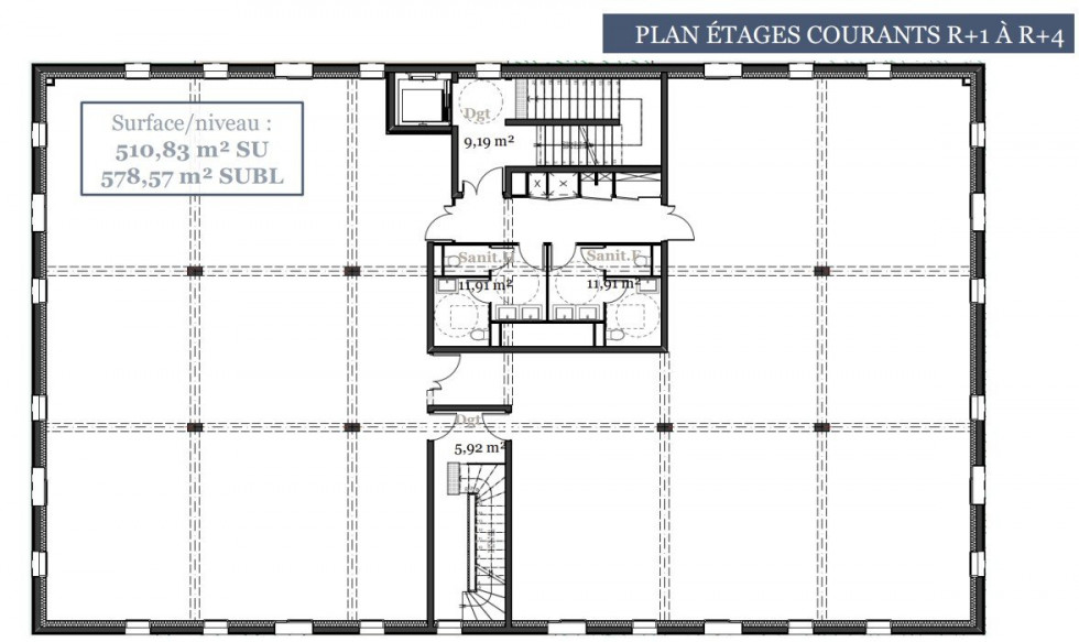
Surface totale disponible : 3 470,84 m²
Bâtiment 1 : 1 156,84 m² disponibles
30 places de stationnement
Bâtiment 2 : 2 314,00 m² disponibles
55 places de stationnement
Bureaux divisibles à partir de 289,10 m²
Conditions financières :
Loyer bureaux : 165 € HT HC/m²/an (hors stationnements)
Stationnements : 850 € HT HC/unité/an
Dépôt de garantie : 3 mois de loyer HT
Honoraires :
Bailleur : 15 % du loyer annuel HT
Preneur : 15 % du loyer annuel HT
Atouts du programme
- Construction neuve conforme RE 2020
- Aménagement prévu selon vos besoins
- Livraison en BEFA – personnalisation possible
- Divisibilité à partir de 289 m²
Livraison 1er trimestre 2027.
Nous contacter pour plus d’informations, plans et étude personnalisée de votre projet.
Pour obtenir le numéro de téléphone de l'agence, remplissez le formulaire de demande de complément d'informations.
- 38
- 53
- Bien
- 47.417464
- 0.706099499995
- /images/ggmap-marker.png
- click
-
BâtimentTOURS - 3470 m²
37250 VEIGNE
Tel. 0631391217
Fax 04 67 70 95 48








