- Ref 3700524
- Ref 22
- Type Locaux d'activité
- Ville CHAMBRAY LES TOURS
- Pièces NC
- Chambres NC
- Surface 499 m²
- Terrain NC
- Loyer Hors Charges :
3 315.52 € par mois * - * Provisions sur charges : 92 € par mois
(régularisation annuelle)
Honoraires charge locataire : 10 742.30 €
Dépôt de garantie : 9 946.58 €
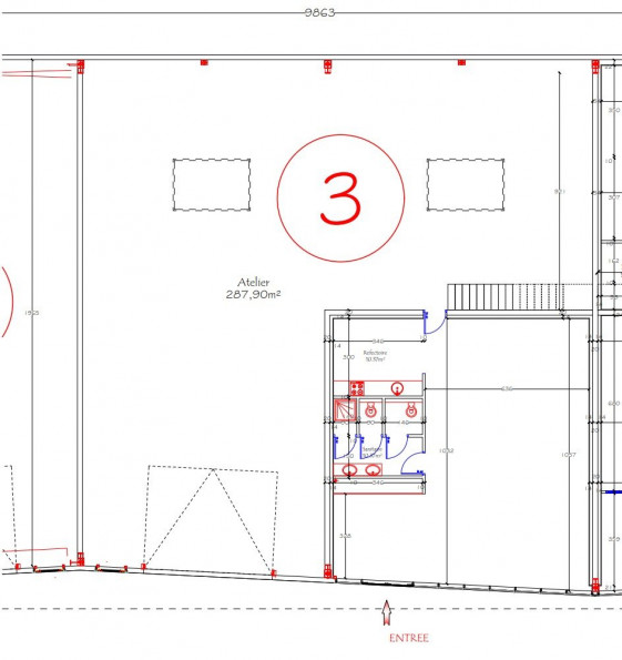
Nous vous proposons un local d’activités récent de 499 m², idéalement situé au cœur de la zone commerciale de la Vrillonnerie à Chambray-lès-Tours.
Atelier : 288 m², avec une porte sectionnelle 4 m x 4 m
Mezzanine brute : 108 m² env. pour stockage ou création d'un espace tertiaire supplémentaire
Bureaux aménagés et équipés : 103 m², comprenant un réfectoire, une douche et deux sanitaires.
3 places de stationnements extérieurs.
Conditions financières :
Loyer annuel : 39 786,32 € soit 79,73 € HT/m²/an.
Provisions pour charges : 1 200 € par an
Dépôt de garantie : 3 mois de loyer HT.
Honoraires de commercialisation : 22,5% HT du loyer annuel HT à la charge du preneur.
Ce bâtiment récent bénéficie de belles prestations et d’un environnement attractif, au sein de la zone commerciale de la Vrillonnerie Sud, un secteur dynamique et recherché.
Proche de tous les grands axes routiers (périphérique Ouest, A10, A85), c'est une opportunité idéale pour implanter votre activité dans un cadre fonctionnel et de qualité.
Pour obtenir le numéro de téléphone de l'agence, remplissez le formulaire de demande de complément d'informations.
- 38
- 53
- Bien
- 47.3274940101
- 0.703918933867
- /images/ggmap-marker.png
- click
-
Locaux d'activitéCHAMBRAY LES TOURS - 499 m²
37250 VEIGNE
Tel. 0631391217
Fax 04 67 70 95 48




