Disponibilité
- Ref 3478913
- Ref 34789_1
- Type Appartement neuf
- Ville SETE
- Pièces 3
- Chambres 2
- Surface 66 m²
- Terrain 34 m²
- Prix :
269 900 € *
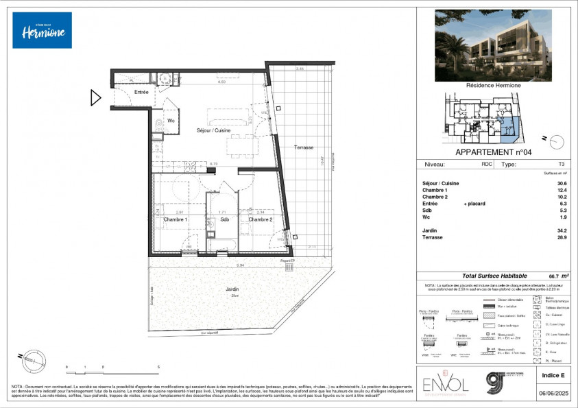
L'agence AS IMMOBILIER 7 vous propose à la vente au coeur de la ville de Sète un appartement de type T3 d'une surface de 66,7 m2 dans un programme neuf.
Ce bien comprend une entrée, un séjour cuisine, deux chambres, une salle de bain et wc.
Pour votre confort cet appartement dispose d'une terrasse de 28,9 m2, un jardin de 34,2 m2 ainsi qu'une place de parking.
Date de livraison prévue quatrième trimestre 2026.
Pour plus de renseignements vous pouvez nous joindre au 04 34 45 52 33 !
Prix TTC et Honoraires à charge vendeur TTC
Les informations sur les risques auxquels ce bien est exposé sont disponibles sur le site Géorisques
* Honoraires charge vendeur.
Diagnostic de
Performance énergétique
Contactez l'agence
Pour obtenir le numéro de téléphone de l'agence, remplissez le formulaire de demande de complément d'informations.
Autour de ce bien :
Découvrez les écoles, hopitaux, commerces ... à proximité
x
- 38
- 53
- Bien
- 43.4017031
- 3.6966051
- /images/ggmap-marker.png
- click
-
Appartement neufSETE - 66 m²
AS IMMOBILIER 7
35 rue des terres du sud34200 SETE
Tel. 07 86 78 08 49
Fax 04 67 70 95 48


















