Disponibilité
- Ref 3478910
- Ref 3478910
- Type Appartement neuf
- Ville SETE
- Pièces 4
- Chambres 3
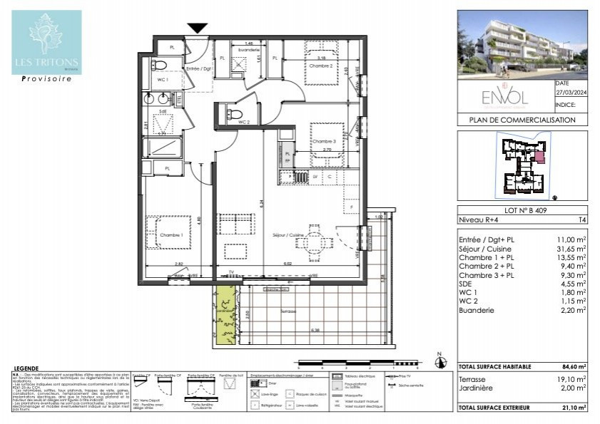
- Surface 84 m²
- Terrain NC
- Prix :
649 900 € *
L'agence AS IMMOBILIER 7 vous propose à la vente à Sète, coté plage, un appartement de type T4 d'une surface de 84,65 m2 dans un programme neuf.
Ce bien comprend une entrée, séjour, cuisine, trois chambres avec placard, ainsi qu'une salle d'eau et deux wc.
Pour votre confort cet appartement dispose d'une terrasse de 21,10 m2 ainsi qu'une place de parking.
Date de livraison prévue deuxième trimestre 2028.
D'autres lots de type T4 sont disponibles.
Pour plus de renseignements vous pouvez nous joindre au 04 34 45 52 33 !
Prix TTC et Honoraires à charge vendeur TTC
Les informations sur les risques auxquels ce bien est exposé sont disponibles sur le site Géorisques
* Honoraires charge vendeur.
Diagnostic de
Performance énergétique
Contactez l'agence
Pour obtenir le numéro de téléphone de l'agence, remplissez le formulaire de demande de complément d'informations.
Autour de ce bien :
Découvrez les écoles, hopitaux, commerces ... à proximité
x
- 38
- 53
- Bien
- 43.4017031
- 3.6966051
- /images/ggmap-marker.png
- click
-
Appartement neufSETE - 84 m²
AS IMMOBILIER
35 rue des terres du sud34200 SETE
Tel. 07 86 78 08 49
Fax 04 67 70 95 48














