- Ref 347036185
- Ref 1688
- Type Local commercial
- Ville VILLENEUVE LES BEZIERS
- Pièces NC
- Chambres NC
- Surface 963 m²
- Terrain 2300 m²
- Prix :
690 000 €
Coté Villeneuve-lès-Béziers,
Venez découvrir cet emplacement avec un fort potentiel.
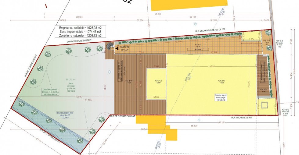
À ce jour, il s'agit d'un local commercial de 963 m2 en R+1 : 551 m2 en rez-de-chaussée et 412 m2 à l'étage. Il s'agit d'une ancienne discothèque où la totalité de l'intérieur du bien a été détruit pour ne laisser que la structure.
Par ailleurs, un permis de construire a été déposé, obtenu et purgé pour réaliser un local commercial d'une surface totale de 951,40 m2 au rez-de-chaussée avec une terrasse de 300 m2 donnant sur un jardin aménagé de 881,13 m2. À l'étage, la surface est identique à l'existant, soit 412 m2 avec l'accès à une terrasse de 286 m2.
Ainsi, le nouveau projet offre une surface projetée de 1 363,40 m2 avec en sus une surface de terrasse de 640 m² et un jardin de 881.13 m2.
Cet emplacement, ce local et le permis offrent donc la possibilité de créer un établissement hors du commun.
Forte visibilité, à proximité des grands axes, zone en cours de développement.
Pour obtenir le numéro de téléphone de l'agence, remplissez le formulaire de demande de complément d'informations.
- 38
- 53
- Bien
- 43.3147333
- 3.280289
- /images/ggmap-marker.png
- click
-
Local commercialVILLENEUVE LES BEZIERS - 963 m²
34200 SETE
Tel. 06 20 27 37 66
Fax 04 67 70 95 48




















