- Ref 345792590
- Ref 782-2
- Type Bureau
- Ville BEZIERS
- Pièces 8
- Chambres NC
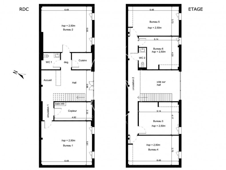
- Surface 235 m²
- Terrain NC
- Loyer Hors Charges :
2 200 € par mois * - * Provisions sur charges : 120 € par mois
(régularisation annuelle)
Honoraires charge locataire : 4 752 €
Dépôt de garantie : 6 600 €
ZAC du MERCORENT – 1345 Ancienne Route de Bédarieux – 34500 Béziers
AO Immobilier vous propose à la location un plateau de bureaux neuf situé au cœur de la zone d’activités de Mercorent.
Surface : 235 m² environ (aménagé en 6 bureaux, accueil, cuisine, sanitaires, espaces de circulation)
LOT 9
Loyer : 3 000 € HT/HC/mois
Charges : 6 €/m² (électricité + eau inclus)
Disponibilité : Livraison 1er novembre 2025
Aménagements et équipements :
Notice Descriptive Commerciale …
Bureaux lumineux avec carrelage grand format et peintures lisses
Chauffage/climatisation par splits
Réseau informatique pré-équipé (baie de brassage, RJ45, PC, HDMI)
Cuisine équipée et espace de pause
Sanitaires aux normes PMR
Contrôle d’accès avec interphone
Escalier métal/bois, hall d’accueil spacieux
Idéal pour société de services, professions libérales ou siège d’entreprise recherchant confort et visibilité.
Honoraires à la charge du locataire 4752 € TTC - Dépôt de garantie 6 600 €
AO IMMOBILIER 0467121095 - - Plus d'informations sur (réf. 345792590)
Pour obtenir le numéro de téléphone de l'agence, remplissez le formulaire de demande de complément d'informations.
- 38
- 53
- Bien
- 43.369597
- 3.217064
- /images/ggmap-marker.png
- click
-
BureauBEZIERS - 235 m²
34000 MONTPELLIER
Tel. 0467121095
Fax 04 67 70 95 48






