- Ref 345642821
- Ref G808
- Type Local commercial
- Ville CARNON PLAGE (MAUGUIO)
- Pièces 4
- Chambres NC
- Surface 54 m²
- Terrain NC
- Loyer Hors Charges :
950 € par mois * - * Provisions sur charges : 140 € par mois
(régularisation annuelle)
Honoraires charge locataire : 710.40 €
Dépôt de garantie : 950 €
* Exclusivité Ma Maison au Sud *
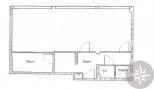
Situé à Carnon-Plage, avec une vitrine côté port et une entrée côté Avenue des Comtes de Melgueil à proximité de toutes commodités (parkings, commerces, port etc), local commercial ou professionnel de 54 m².
Le local est agencé d'une entrée, d'une pièce principale de plus de 35 m², lumineuse, avec une vitrine sur le port, d'une salle d'eau et d'un wc séparé.
Prestations : double vitrage, climatisation réversible.
Opportunité : pas de droit au bail ni de pas de porte !
Idéal pour une activité professionnelle libérale ou un commerçant
Bar/Restauration, non autorisés.
Diponible à partir du 16/07/2026.
Pour toutes demandes complémentaires ou l'envoi de votre dossier de candidature,
N'hésitez pas à nous solliciter par mail à l'adresse suivante: location@mamaisonausud.fr
Consultez notre site internet pour constituer votre dossier de location dés à présent et découvrez les visites virtuelles des biens sur notre chaîne YouTube.
Loyer HC : 950 €
Dépôt de garantie : 950 €
Provision sur charge : 140 €
Frais d'agence : 592 € (dont 161 € d'état des lieux)
L'agence tient à votre disposition le DDT (Dossier de Diagnostics Techniques) complet du bien immobilier présenté, et ce, dès la 1ère visite.
Des informations sur les risques auxquels ce bien est exposé sont également disponibles sur le site Géorisques : www.georisques.gouv.fr - Ma Maison au Sud - Plus d'informations sur www.mamaisonausud.fr
Pour obtenir le numéro de téléphone de l'agence, remplissez le formulaire de demande de complément d'informations.
- 38
- 53
- Bien
- 43.5702741
- 4.0644352
- /images/ggmap-marker.png
- click
-
Local commercialCARNON PLAGE (MAUGUIO) - 54 m²
34130 CARNON-PLAGE
Tel. 04 67 54 14 67
Fax 04 67 70 95 48










