Disponibilité
- Ref 34479729
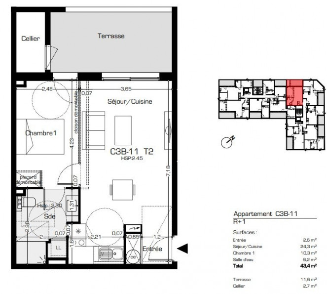
- Ref 0960 C3B11 T2
- Type Appartement terrasse
- Ville BEZIERS
- Pièces 2
- Chambres 1
- Surface 43 m²
- Terrain NC
- Prix :
158 000 € *
BEZIERS, quartier de l'Hours, au 1er étage d'une résidence sécurisée de 6 étages avec ascenseur, répondant à la règlementation RE 2020, Appartement T2, haut de gamme de 43.40m2 habitables avec terrasse d'environ 11,60m2 et un parking privatif en sous-sol.. Honoraires à la charge du vendeur. Bien soumis au statut juridique de la copropriété. Les informations sur les risques auxquels ce bien est exposé sont disponibles sur le site Géorisques : www.georisques.gouv.fr POLE SUD IMMOBILIER - Plus d'informations sur polesudimmo.fr (réf. 34479729). José Martinez 06.72.76.13.82
Les informations sur les risques auxquels ce bien est exposé sont disponibles sur le site Géorisques
* Honoraires charge vendeur.
Diagnostic de
Performance énergétique
Contactez l'agence
Pour obtenir le numéro de téléphone de l'agence, remplissez le formulaire de demande de complément d'informations.
Autour de ce bien :
Découvrez les écoles, hopitaux, commerces ... à proximité
x
- 38
- 53
- Bien
- 43.3416692
- 3.238251
- /images/ggmap-marker.png
- click
-
Appartement terrasseBEZIERS - 43 m²
POLE SUD IMMOBILIER
103 BOULEVARD DE LA LIBERTE34500 BEZIERS
Tel. 04 67 00 00 00
Fax 04 67 70 95 48














