Disponibilité
- Ref 34479722
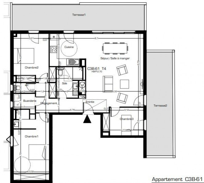
- Ref 0960 C3B61 T4
- Type Villa sur toit
- Ville BEZIERS
- Pièces 4
- Chambres 3
- Surface 112 m²
- Terrain NC
- Prix :
421 500 € *
BEZIERS, quartier de l'Hours, dans une résidence sécurisée de 6 étages avec ascenseur, répondant à la règlementation RE 2020, Appartement T4, haut de gamme de 112m2 habitables au 6ème étage, terrasses de 29m2 et 23m2 avec vue panoramique.2 parkings en sous-sol. Honoraires à la charge du vendeur. Bien soumis au statut juridique de la copropriété. (Les informations sur les risques auxquels ce bien est exposé sont disponibles sur le site Géorisques : www.georisques.gouv.fr POLE SUD IMMOBILIER - Plus d'informations sur polesudimmo.fr (réf. 34479722). José Martinez 06.72.76.13.82
Les informations sur les risques auxquels ce bien est exposé sont disponibles sur le site Géorisques
* Honoraires charge vendeur.
Diagnostic de
Performance énergétique
Contactez l'agence
Pour obtenir le numéro de téléphone de l'agence, remplissez le formulaire de demande de complément d'informations.
Autour de ce bien :
Découvrez les écoles, hopitaux, commerces ... à proximité
x
- 38
- 53
- Bien
- 43.3416692
- 3.238251
- /images/ggmap-marker.png
- click
-
Villa sur toitBEZIERS - 112 m²
POLE SUD IMMOBILIER
103 BOULEVARD DE LA LIBERTE34500 BEZIERS
Tel. 04 67 00 00 00
Fax 04 67 70 95 48












