- Ref 343323143
- Ref 0000/101RDC
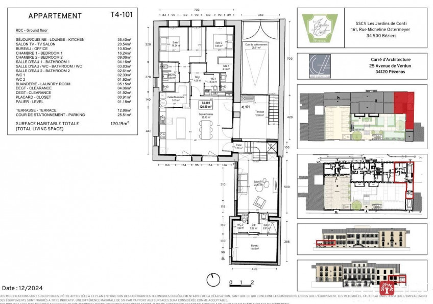
- Type Appartement
- Ville PEZENAS
- Pièces 5
- Chambres 3
- Surface 120 m²
- Terrain NC
- Prix :
563 000 € *
UNIQUE.
Dans un écrin de verdure et d’histoire, en plein cœur de Pézenas, découvrez 12 appartements d’exception, tous entièrement climatisés et dotés de cuisines aménagées, pensés comme des pièces uniques.
Entre jardin clos paysager, terrasses baignées de lumière, loggias ombragées ou espaces voûtés, chaque logement révèle une personnalité singulière, alliant le cachet de l’ancien au confort contemporain.
Des prestations rares :
- Ascenseur
- Cuisine aménagée
- Climatisation
- Parking privatif sécurisé
- Cave individuelle
- Local vélo sous voûte historique
- Jardin méditerranéen commun, sous l’ombre apaisante des micocouliers centenaires
Un projet intimiste, confidentiel, hors du temps, où chaque appartement est différent, pensé pour une clientèle en quête de caractère et de sérénité.
Centre historique de Pézenas
De 1 à 3 chambres – Terrasses ou jardins privatifs
Frais de notaires 2.6%
Les Jardins de Conti : l’élégance d’un lieu chargé d’histoire, réinventé avec goût pour habiter demain.
Via Sud Immobilier - - Plus d'informations sur www.viasud.fr - agence@viasud.fr (réf. 343329)
Bien soumis au statut juridique de la Copropriété. Nb de lots : 17.
Les informations sur les risques auxquels ce bien est exposé sont disponibles sur le site Géorisques : www.georisques.gouv.fr.
Honoraires charge vendeur
* Honoraires charge vendeur.
Pour obtenir le numéro de téléphone de l'agence, remplissez le formulaire de demande de complément d'informations.
- 38
- 53
- Bien
- 43.4598826
- 3.4236859
- /images/ggmap-marker.png
- click
-
AppartementPEZENAS - 120 m²
34500 BEZIERS
Tel. 04 67 49 92 49
Fax 04 67 70 95 48




















