Disponibilité
- Ref 3415166679
- Ref 11221
- Type Appartement neuf
- Ville AGDE
- Pièces 3
- Chambres 2
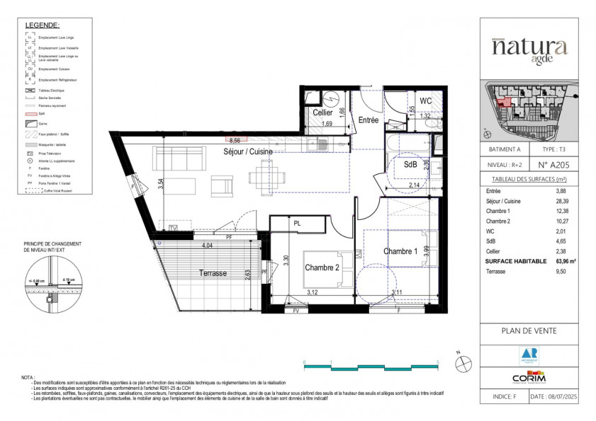
- Surface 63 m²
- Terrain NC
- Prix :
219 900 € *
NATURA, résidence au charme méditerranéen à Agde.
Découvrez cet appartement neuf disposant d'un séjour lumineux, deux chambres, terrasse, deux parkings et local vélo sécurisé !
Bien soumis au statut juridique de la Copropriété. Pas de procédure en cours.
Surface CARREZ : 63.96 m² Prix TTC et Honoraires à charge vendeur TTC Agent commercial RSAC N° 930 245 725
Les informations sur les risques auxquels ce bien est exposé sont disponibles sur le site Géorisques
Les informations sur les risques auxquels ce bien est exposé sont disponibles sur le site Géorisques
* Honoraires charge vendeur.
Diagnostic de
Performance énergétique
Contactez l'agence
Pour obtenir le numéro de téléphone de l'agence, remplissez le formulaire de demande de complément d'informations.
Autour de ce bien :
Découvrez les écoles, hopitaux, commerces ... à proximité
x
- 38
- 53
- Bien
- 43.3053326
- 3.4902391
- /images/ggmap-marker.png
- click
-
Appartement neufAGDE - 63 m²
S'ANTONI IMMOBILIER MEZE
52, Avenue de Montpellier34140 MEZE
Tel. 04 67 18 64 64
Fax 04 67 18 64 65










