Disponibilité
- Ref 341454833
- Ref 4291
- Type Appartement
- Ville SETE
- Pièces 1
- Chambres NC
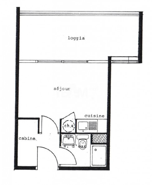
- Surface 17 m²
- Terrain NC
- Prix :
99 000 € *
Dans résidence avec ascenseur et gardien, située à proximité des plages et de la marina des Quilles, agréable studio au 4ème étage avec belle loggia vitrée de 10 m² offrant une belle vue dégagée sur le Mont Saint Clair. Exposition EST. Possibilité achat garage en sus dans la résidence pour 31.000 euros.
Les informations sur les risques auxquels ce bien est exposé sont disponibles sur le site Géorisques
Bien meublé.Bien soumis au statut juridique de la copropriété. Nb de lot :90. Charges annuelles de copropriété (Montant moyen annuel quote-part du budget prévisionnel vendeur) : 528.00 €.
* Honoraires charge vendeur.
Diagnostic de
Performance énergétique

Montant estimé des dépenses annuelles d'énergie pour un usage standard: entre 397,00€ et 537,00€ par an.Prix moyens des énergies indexés sur les années 2021, 2022 et 2023 (abonnement compris)
Contactez l'agence
Pour obtenir le numéro de téléphone de l'agence, remplissez le formulaire de demande de complément d'informations.
Autour de ce bien :
Découvrez les écoles, hopitaux, commerces ... à proximité
x
- 38
- 53
- Bien
- 43.3960517927
- 3.66263151168
- /images/ggmap-marker.png
- click
-
AppartementSETE - 17 m²
AMARINE IMMOBILIER
1 rue des Marines de Saint-Clair34204 SETE
Tel. 04.67.53.53.40
Fax 04.67.53.42.82




















