- Ref 34145442
- Ref 3329
- Type Studio cabine
- Ville MARINA
- Pièces 1
- Chambres NC
- Surface 22 m²
- Terrain NC
- Loyer Charges Comprises :
386 € par mois * - * Dont charges forfaitaires : 62.50 € par mois
Honoraires charge locataire : 191 € TTC
Dont honoraires état des lieux : 66 € TTC
Dépôt de garantie : 0 €
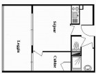
Location en bail mobilité. Appartement meublé de 22m2 au 5ème et dernier étage (avec ascenseur) d'une résidence proche plage et commerces. Loggia vitrée d'environ 10m2 . Vue sur le Mont St Clair. Le séjour avec canapé-lit, table, chaises. Salle d'eau : vasque, lavabo. WC séparés. Kitchenette équipée de 2 plaques, frigo-congélateur, micro-onde. Cabine séparée et aérée avec 2 lits superposés. Parking prévu.
Bail mobilité jusqu'en 2026 pour étudiant.
Selon les informations mises à disposition dans le Dossier Communal d'Information, le BIEN est ainsi concerné par :
- Le risque Inondation et par la réglementation du PPRn Inondation approuvé le 25/01/2012. Le bien se situe dans une zone bleue (BU) et dans une zone rouge (RU).
> Des prescriptions de travaux existent pour l'immeuble.
- Le risque sismique (niveau 2, sismicité Faible) et par la réglementation de construction parasismique.
Loyer: 386.00 €* Dont charges forfaitaires : 62,50 € par mois
Honoraires charge locataire : 191 € TTC Frais de visite / dossier / rédaction du bail 125 € TTC
dont honoraires état des lieux : 66 € TTC

Montant estimé des dépenses annuelles d'énergie pour un usage standard: entre 460,00€ et 670,00€ par an.
Prix moyen des énergies indexés au 01/01/2021 (abonnement compris)
Pour obtenir le numéro de téléphone de l'agence, remplissez le formulaire de demande de complément d'informations.
- 38
- 53
- Bien
- 43.3959258193
- 3.66287072142
- /images/ggmap-marker.png
- click
-
Studio cabineMARINA - 22 m²
34204 SETE
Tel. 04.67.53.53.40
Fax 04.67.53.42.82




















