Disponibilité
- Ref 340694156
- Ref 4156
- Type Appartement
- Ville LE GRAU DU ROI
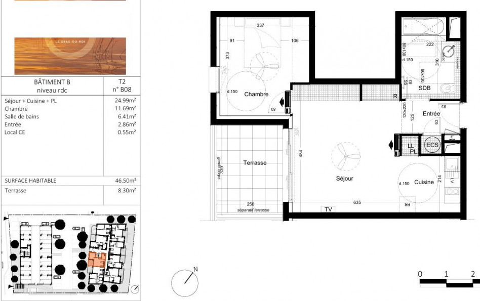
- Pièces 2
- Chambres 1
- Surface 46 m²
- Terrain NC
- Prix :
255 000 € *
Le Grau du Roi, nouvelle résidence à taille humaine de 2 étages, propose ce joli T2 qui dispose d'un confortable salon ouvert sur une terrasse et un jardin, idéal pour son animal de compagnie, 2 belle chambre ouverte sur l'extérieur. Prestations soignées avec clim et carrelage 60x60 wc suspendu, 2 stationnements privatifs.
Les informations sur les risques auxquels ce bien est exposé sont disponibles sur le site Géorisques
Bien soumis au statut juridique de la copropriété. Nb de lot :38.
* Honoraires charge vendeur.
Diagnostic de
Performance énergétique
Contactez l'agence
Pour obtenir le numéro de téléphone de l'agence, remplissez le formulaire de demande de complément d'informations.
Autour de ce bien :
Découvrez les écoles, hopitaux, commerces ... à proximité
x
- 38
- 53
- Bien
- 43.513984
- 4.1616143
- /images/ggmap-marker.png
- click
-
AppartementLE GRAU DU ROI - 46 m²
AVISO IMMOBILIER
9 Avenue de la Galine34170 CASTELNAU LE LEZ
Tel. 0687833061
Fax 04 67 70 95 48








