Disponibilité
- Ref 340693896
- Ref 2023246
- Type Bureau
- Ville SAINT GELY DU FESC
- Pièces 1
- Chambres NC
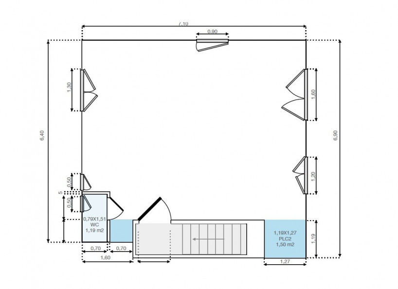
- Surface 44 m²
- Terrain NC
- Loyer Hors Charges :
493 € par mois * - * Provisions sur charges : 38 € par mois
(régularisation annuelle)
Honoraires charge locataire : 493 €
Dépôt de garantie : 986 €
Saint Gely du Fesc, local à usage de bureau situé au 1er etage d'un immeuble de bureau. grand open sapce de 43 m² et sanitaire indépendant. Climatisation réversible. faibles charges. Loyer 531 € Charges comprises. (pas de TVA applicable).
Les informations sur les risques auxquels ce bien est exposé sont disponibles sur le site Géorisques
Diagnostic de
Performance énergétique
Contactez l'agence
Pour obtenir le numéro de téléphone de l'agence, remplissez le formulaire de demande de complément d'informations.
Autour de ce bien :
Découvrez les écoles, hopitaux, commerces ... à proximité
x
- 38
- 53
- Bien
- 43.6928773
- 3.8047588
- /images/ggmap-marker.png
- click
-
BureauSAINT GELY DU FESC - 44 m²
AVISO IMMOBILIER
9 Avenue de la Galine34170 CASTELNAU LE LEZ
Tel. 0687833061
Fax 04 67 70 95 48










