- Ref 3401415534
- Ref 3405
- Type Maison
- Ville LATTES
- Pièces 6
- Chambres 4
- Surface 190 m²
- Terrain 1360 m²
- Prix :
685 000 € *
Située à Lattes-Maurin, dans un environnement résidentiel calme et recherché, cette maison à rénover d’environ 190 m² habitables offre un fort potentiel sur une belle parcelle de plus de 1 360 m², rare sur le secteur.
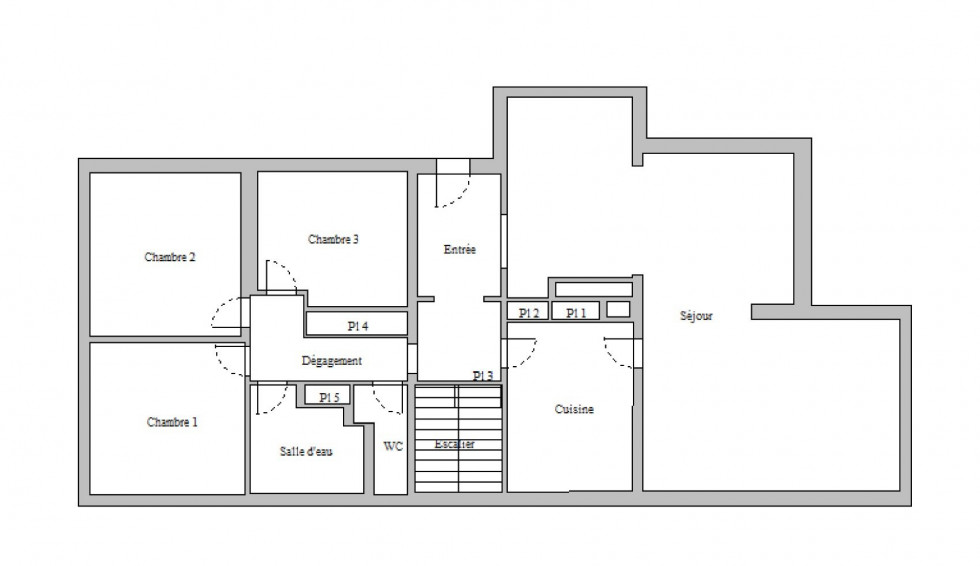
Le niveau principal, d’environ 135 m², se compose d’un séjour lumineux avec cheminée, d’une salle à manger, d’une cuisine indépendante, de trois chambres, d’une salle de bain et de WC séparés.
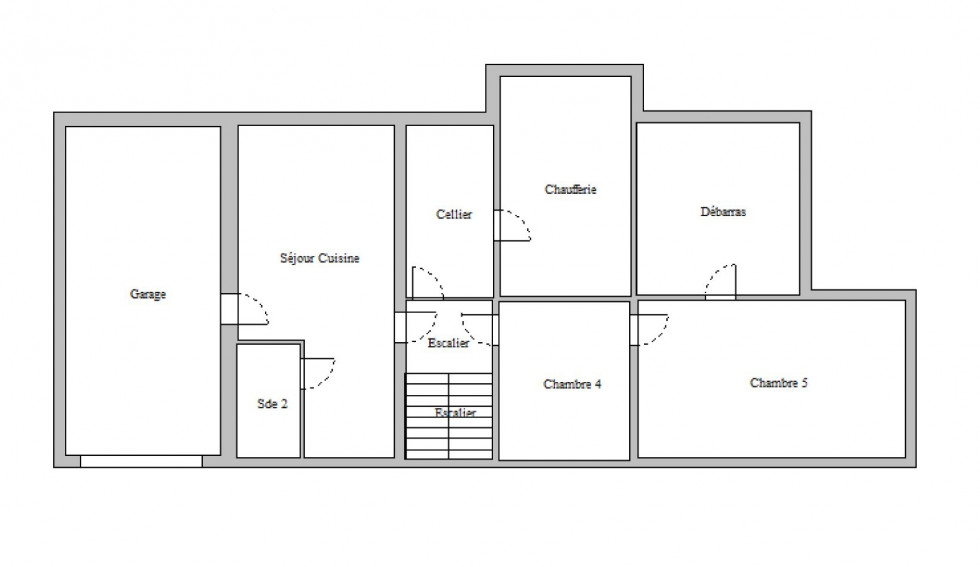
En rez-de-jardin, un espace complémentaire d’environ 65 m² avec ouvertures offre de nombreuses possibilités d’aménagement : suite indépendante, bureau pour le télétravail, salle de sport ou encore logement locatif.
Implantée sur une grande parcelle, la propriété permet d’imaginer un extérieur de qualité avec, notamment, la possibilité d’aménager une piscine exposée plein sud, idéale pour profiter pleinement des beaux jours.
Un garage double ainsi que plusieurs stationnements extérieurs complètent le bien.
Maison saine nécessitant des travaux de rénovation (cuisine, salle de bain, rafraîchissement), idéale pour un projet de résidence principale ou d’investissement.
Actuellement classée en DPE F en raison d’un système de chauffage au fioul, cette maison offre un potentiel d’amélioration énergétique. Le remplacement du système existant par une solution plus moderne et économique, comme une pompe à chaleur, permettrait d’optimiser le confort et la consommation.
* Honoraires charge vendeur.

Montant estimé des dépenses annuelles d'énergie pour un usage standard: entre 3 500,00€ et 4 500,00€ par an.Prix moyens des énergies indexés sur les années 2021, 2022 et 2023 (abonnement compris)
Pour obtenir le numéro de téléphone de l'agence, remplissez le formulaire de demande de complément d'informations.
- 38
- 53
- Bien
- 43.5617292
- 3.8960811
- /images/ggmap-marker.png
- click
-
MaisonLATTES - 190 m²
34000 MONTPELLIER
Tel. 0467660066
Fax 04 67 70 95 48










