Disponibilité
- Ref 31256103918
- Ref 2022-4057
- Type Local commercial
- Ville SAINT JORY
- Pièces NC
- Chambres NC
- Surface 1936 m²
- Terrain NC
- Loyer Hors Charges :
19 360 € par mois * - * Provisions sur charges : 0 € par mois
(régularisation annuelle)
Honoraires charge locataire : 0 €
Dépôt de garantie : 0 €
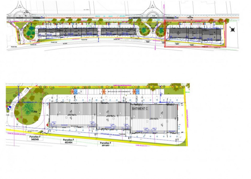
NORD EST TOULOUSE - ST JORY - LOCATION LOCAL COMMERCIAL 1936M² Divisible à partir de 704M², Visible sur un axe passant et très accessible, 20 000 véhicules/jour. Ce local d'activité est situé dans un ensemble de locaux d'activités. Vitrine sur l'avant. Parking. Nous consulter pour les loyer des autres surfaces disponibles. Nos annonces similaires sur le site : immobilier-entreprise-31
Les informations sur les risques auxquels ce bien est exposé sont disponibles sur le site Géorisques
Diagnostic de
Performance énergétique
Contactez l'agence
Pour obtenir le numéro de téléphone de l'agence, remplissez le formulaire de demande de complément d'informations.
Autour de ce bien :
Découvrez les écoles, hopitaux, commerces ... à proximité
x
- 38
- 53
- Bien
- 43.7428108
- 1.3706317
- /images/ggmap-marker.png
- click
-
Local commercialSAINT JORY - 1936 m²
ADE IMMO PRO
35 ave Champollion, 31100 Toulouse31100 TOULOUSE
Tel. 05 34 51 25 87
Fax 04 67 70 95 48








