- Ref 3124536913
- Ref 345
- Type Maison
- Ville 545 ROUTE DE MURET
- Pièces 3
- Chambres 2
- Surface 67 m²
- Terrain NC
- Loyer Charges Comprises :
813 € par mois * - * Dont provisions sur charges : 60 € par mois
(régularisation annuelle)
Honoraires charge locataire : 837 € TTC
Dont honoraires état des lieux : 201 € TTC
Dépôt de garantie : 753 €
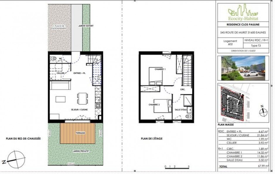
Villa T3 avec jardin, située 545 route de Muret à Eaunes, comprenant au RDC un séjour cuisine, une entrée, un celier et un sanitaire.
A l'étage vous retrouverez deux chambres avec placards et une salle d'eau et un WC.
Un jardin privatif et deux emplacements parkings exterieurs.
Chauffage climatisation réversible au RDC.
Loyer: 813.00 €* Dont provision sur charges : 60 € par mois (régularisation annuelle)
Honoraires charge locataire : 837 € TTC
dont honoraires état des lieux : 201 € TTC
Dépôt de garantie : 753 €
SEEDS - 05 82 95 11 24 - Plus d'informations sur (réf. 3124536913)
Les informations sur les risques auxquels ce bien est exposé sont disponibles sur le site Géorisques
Diagnostic de
Performance énergétique

Montant estimé des dépenses annuelles d'énergie pour un usage standard: entre 460,00€ et 670,00€ par an.Prix moyens des énergies indexés sur les années 2025, 2025 et 2025 (abonnement compris)
Contactez l'agence
Pour obtenir le numéro de téléphone de l'agence, remplissez le formulaire de demande de complément d'informations.
Autour de ce bien :
Découvrez les écoles, hopitaux, commerces ... à proximité
x
- 38
- 53
- Bien
- 43.4248587
- 1.3569182
- /images/ggmap-marker.png
- click
-
Maison545 ROUTE DE MURET - 67 m²
SEEDS
20 Rue NOVITAL31150 GAGNAC SUR GARONNE
Tel. 0582951124
Fax 04 67 70 95 48












