Disponibilité
- Ref 3124536905
- Ref 339
- Type Appartement
- Ville AZURIA
- Pièces 2
- Chambres 1
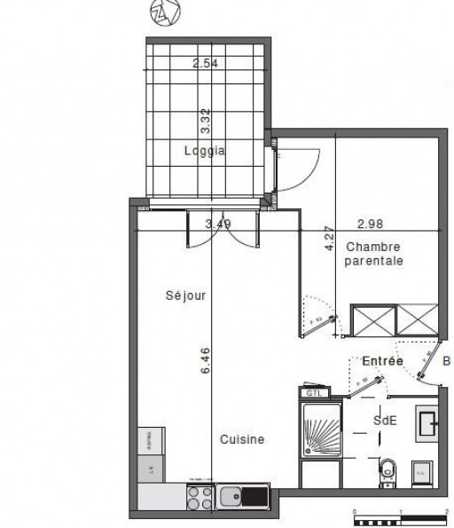
- Surface 45 m²
- Terrain NC
- Loyer Charges Comprises :
693 € par mois * - * Dont provisions sur charges : 40 € par mois
(régularisation annuelle)
Honoraires charge locataire : 595 € TTC
Dont honoraires état des lieux : 137 € TTC
Dépôt de garantie : 653 €
FREJUS Magnifique T2 comprenant une cuisine équipée ouverte sur le séjour donnant la terrasse, une chambre avec placard, une salle d'eau avec WC.
Climatisation réversible et radiant électrique
1 emplacement de parking
Loyer: 693.00 €* Dont provision sur charges : 40 € par mois (régularisation annuelle)
Honoraires charge locataire : 595 € TTC
dont honoraires état des lieux : 137 € TTC
Dépôt de garantie : 653 €
SEEDS - Bastien - 05 82 95 11 24 - Plus d'informations sur (réf. 3124536905)
Les informations sur les risques auxquels ce bien est exposé sont disponibles sur le site Géorisques
Diagnostic de
Performance énergétique

Montant estimé des dépenses annuelles d'énergie pour un usage standard: entre 497,00€ et 673,00€ par an.
Prix moyen des énergies indexés au 03/03/2025 (abonnement compris)
Contactez l'agence
Pour obtenir le numéro de téléphone de l'agence, remplissez le formulaire de demande de complément d'informations.
Autour de ce bien :
Découvrez les écoles, hopitaux, commerces ... à proximité
x
- 38
- 53
- Bien
- 43.4324683
- 6.7351796
- /images/ggmap-marker.png
- click
-
AppartementAZURIA - 45 m²
SEEDS
20 Rue NOVITAL31150 GAGNAC SUR GARONNE
Tel. 0582951124
Fax 04 67 70 95 48




