Disponibilité
- Ref 311252153
- Ref CAZ7783
- Type Maison
- Ville CARBONNE
- Pièces 2
- Chambres 1
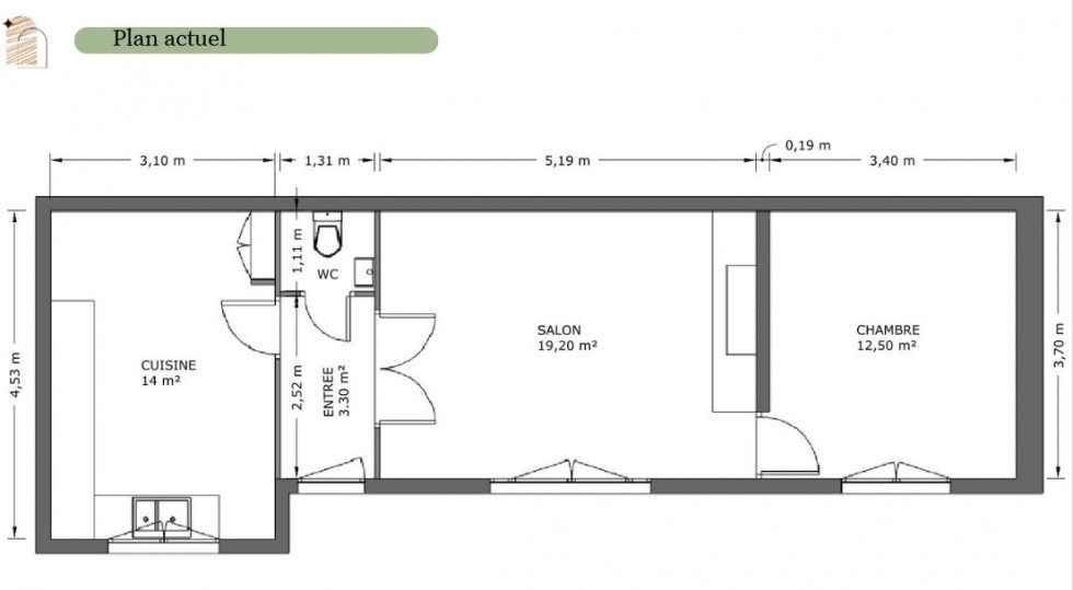
- Surface 50 m²
- Terrain 282 m²
- Prix :
118 400 €
A proximité immédiate (à pied) des commodités de Carbonne, commerces et supermarché du centre ville, médecins, etc..., maison individuelle de plain pied composée d'une chambre, d'un salon et d'une cuisine séparée. La maison dispose d'un jardin privatif de plus de 200m²
Les informations sur les risques auxquels ce bien est exposé sont disponibles sur le site Géorisques
Diagnostic de
Performance énergétique
Contactez l'agence
Pour obtenir le numéro de téléphone de l'agence, remplissez le formulaire de demande de complément d'informations.
Autour de ce bien :
Découvrez les écoles, hopitaux, commerces ... à proximité
x
- 38
- 53
- Bien
- 43.2952408
- 1.2259795
- /images/ggmap-marker.png
- click
-
MaisonCARBONNE - 50 m²
TPI
21, Avenue Pasteur31220 CAZÈRES
Tel. 05 61 97 06 44
Fax 05 61 97 51 28




















