- Ref 310786542
- Ref 5027/MD/1A
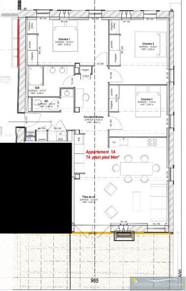
- Type Appartement
- Ville SECTEUR VENERQUE
- Pièces 4
- Chambres 3
- Surface 94 m²
- Terrain 23 m²
- Loyer Charges Comprises :
1 090 € par mois * - * Dont provisions sur charges : 40 € par mois
(régularisation annuelle)
Honoraires charge locataire : 756 € TTC
Dont honoraires état des lieux : 252 € TTC
Dépôt de garantie : 1 050 €
Votre agence Immobilier des Coteaux, vous propose à la location, sur la commune de GREPIAC, cet appartement T4 de plain-pied dans un petit collectif de 6 appartements.
Il se compose d'une entrée avec placard (avec emplacement lave linge), un wc, séjour/cuisine ouverte (équipée plaque et hotte), trois chambres avec placards, une salle d'eau. Terrasse avec pergola, petit jardin (23m2) et deux places de parking privatives. Libre tout de suite !
Accès aux écoles maternelle et primaires à pied. Clim réversible dans le séjour et radiateurs électriques dans les chambres. Tout est neuf (rénovation 2024/2025).
Montant estimé des dépenses annuelles d'énergie pour un usage standard : entre 1090€ et 1530€/an indexé sur les années 2021,2022 et 2023 (abonnement compris). Les informations sur les risques auxquels ce bien est exposé sont disponible sur le site GEORISQUES : www.georisques.gouv.fr
Loyer: 1 090.00 €* Dont provision sur charges : 40 € par mois (régularisation annuelle)
Honoraires charge locataire : 756 € TTC dont :
- Frais de visite / dossier / rédaction du bail 504 € TTC
- Honoraires état des lieux : 252 € TTC
Dépôt de garantie : 1 050 € - -

Montant estimé des dépenses annuelles d'énergie pour un usage standard: entre 1 090,00€ et 1 530,00€ par an.Prix moyens des énergies indexés sur les années 2021, 2022 et 2023 (abonnement compris)
Pour obtenir le numéro de téléphone de l'agence, remplissez le formulaire de demande de complément d'informations.
- 38
- 53
- Bien
- 43.4330838
- 1.442981
- /images/ggmap-marker.png
- click
-
AppartementSECTEUR VENERQUE - 94 m²
31810 VERNET
Tel. 05 34 48 22 03
Fax 04 67 70 95 48




















