- Ref 310528537
- Ref 4821
- Type Maison
- Ville BESSIERES
- Pièces 4
- Chambres 2
- Surface 138 m²
- Terrain 443 m²
- Prix :
215 000 € *
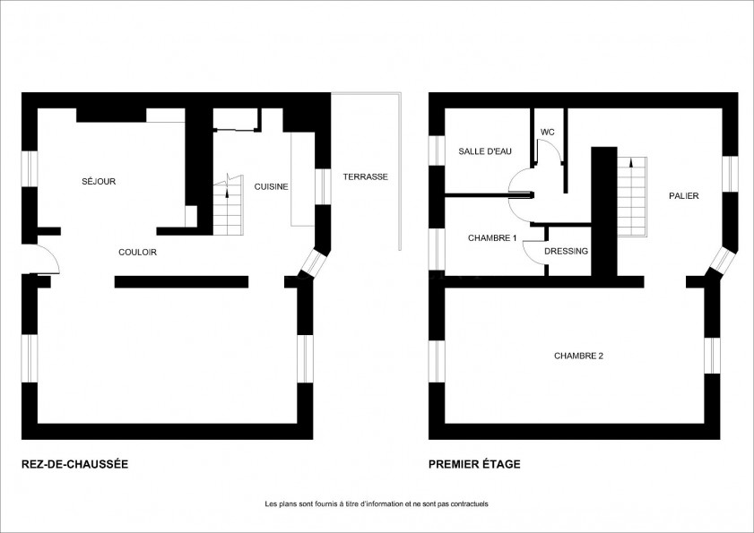
EXCLUSIVITE Dans une commune proche de Bessières, en fond d'impasse dans un secteur calme, cette charmante maison de village vous séduira par ses beaux volumes, son jardin sans vis-à-vis et ses annexes, rares sur le secteur. Nous y entrons par un couloir central agrémenté par une cheminée insert à double paroi vitrée qui réchauffe d'un côté un salon douillet, de l'autre un grand séjour traversant. La cuisine dînatoire, aménagée et équipée de son pôle de cuisson, donne accès à une jolie terrasse sur jardin. A l'étage, un grand palier à office actuel de bureau et salon, dessert 2 chambres confortables dont une avec mezzanine, l'autre avec dressing, une salle d'eau et un toilette séparé. A l'extérieur, la terrasse est agrémentée d'une jolie dépendance et d'un jardin engazonné et arboré de 210m2, au calme et sans vis-à-vis. Enfin, côté entrée, un ancien hangar de 35m2 fait office de carport et donne accès à un deuxième jardinet de 60m2. Véritable opportunité sur le secteur, n'hésitez pas à nous contacter pour plus de renseignements ! Honoraires TTC charge vendeur Agent Commercial VOTRE AGENCE DE BESSIERES - Plus d'informations au 05 61 58 18 67 réf.4821
* Honoraires charge vendeur.

Montant estimé des dépenses annuelles d'énergie pour un usage standard: entre 2 096,00€ et 2 836,00€ par an.Prix moyens des énergies indexés sur les années 2021, 2022 et 2023 (abonnement compris)
Pour obtenir le numéro de téléphone de l'agence, remplissez le formulaire de demande de complément d'informations.
- 38
- 53
- Bien
- 43.800194
- 1.6064457
- /images/ggmap-marker.png
- click
-
MaisonBESSIERES - 138 m²
31660 BESSIERES
Tel. 05 61 58 18 67
Fax 0561588150




















