- Ref 301809064
- Ref 199968
- Type Maison
- Ville Les Angles
- Pièces NC
- Chambres 4
- Surface 130 m²
- Terrain NC
- Prix :
350 000 €
Située au fond d’une impasse où je réside également, cette maison de 130 m² offre un cadre de vie idéal pour une famille recherchant tranquillité et espace. Édifiée sur un terrain clos et arboré de 405 m², elle bénéficie d’un agencement fonctionnel ainsi que de plusieurs accès directs au jardin.
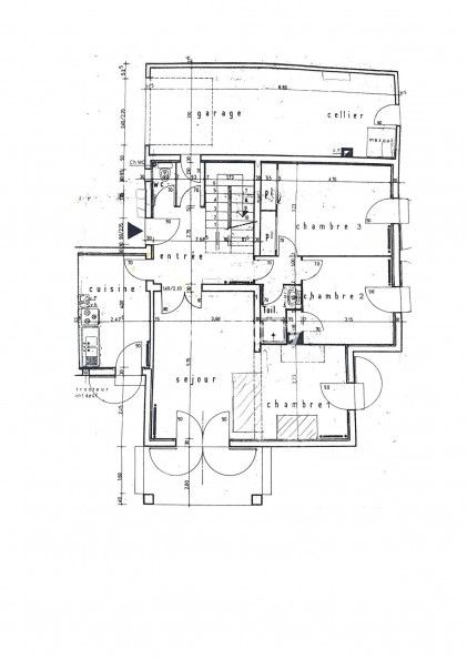
En entrant, vous découvrez un hall qui dessert les premiers espaces de vie. Le séjour et la salle à manger, lumineux et confortables grâce à la climatisation et à la cheminée, s’ouvrent largement sur le jardin.
La cuisine, attenante, offre un espace pratique pour la vie quotidienne.
Le rez-de-chaussée comprend deux chambres : la première de 10 m² et la seconde de 13,50m², toutes deux équipées de placards et profitant d’un accès direct au jardin.
Une salle d’eau, un WC indépendant et un sas menant au garage complètent ce niveau.
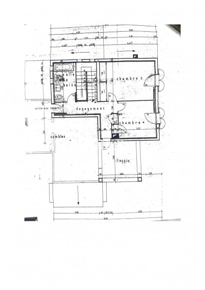
À l’étage, un palier climatisé distribue deux nouvelles chambres de 10 m² et 13,50 m², chacune dotée d’un placard intégré.
Une salle de bains vient parfaire cet étage, ainsi que des combles aménagés offrant un potentiel de rangement supplémentaire.
Une terrasse d’environ 10 m² permet de profiter pleinement du calme extérieur et d’une vue dégagée sans vis-à-vis.
La maison dispose également d’un garage avec mezzanine de 13 m², idéal pour le stockage.
Côté confort, vous bénéficierez d’une chaudière gaz de ville installée en 2019, de plusieurs climatiseurs, de volets roulants électriques dans la plupart des pièces ainsi que de volets en bois.
Par son emplacement en fond d’impasse, son calme, son agencement familial et ses multiples accès au jardin, cette maison représente une opportunité dans le secteur. Elle conviendra parfaitement à celles et ceux qui recherchent une vie paisible tout en restant proches des commodités.
Pour plus d’informations ou pour organiser une visite, je reste à votre disposition.
Pour obtenir le numéro de téléphone de l'agence, remplissez le formulaire de demande de complément d'informations.
- 38
- 53
- Bien
- 43.9496066
- 4.7588042
- /images/ggmap-marker.png
- click
-
MaisonLes Angles - 130 m²
30230 BOUILLARGUES
Tel. +33430920117
Fax 04 67 70 95 48




















