Disponibilité
- Ref 0602010033
- Ref 8534
- Type Appartement
- Ville DIJON
- Pièces 2
- Chambres 1
- Surface 64 m²
- Terrain NC
- Prix :
60 000 € *
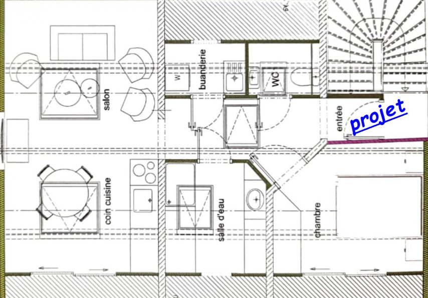
Côte d'Or,Dijon, plateau à rénover 64 m2 au sol carrez 24.10 m2 avec un stationnement faire les démarches administratives pour changement de destination Prix TTC et Honoraires à charge vendeur TTC REVALYS - SOARES - 06 87 09 13 52 - Plus d'informations sur www.revalys.eu (réf. 0602010033) Surface CARREZ : 24.1 m²
Les informations sur les risques auxquels ce bien est exposé sont disponibles sur le site Géorisques
* Honoraires charge vendeur.
Diagnostic de
Performance énergétique
Contactez l'agence
Pour obtenir le numéro de téléphone de l'agence, remplissez le formulaire de demande de complément d'informations.
Autour de ce bien :
Découvrez les écoles, hopitaux, commerces ... à proximité
x
- 38
- 53
- Bien
- 47.3237985
- 5.0386146
- /images/ggmap-marker.png
- click
-
AppartementDIJON - 64 m²
REVALYS
23 RUE FODERE06300 NICE
Tel. 04 67 70 95 20
Fax 04 67 70 95 48




















