- Ref 060061387
- Ref 2203-1
- Type Maison mitoyenne
- Ville TOURRETTE LEVENS
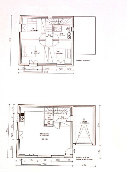
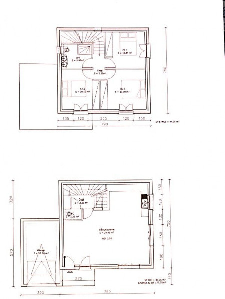
- Pièces 4
- Chambres 3
- Surface 90 m²
- Terrain NC
- Prix :
546 000 € *
VILLA CONTEMPORAINE À TOURRETTE-LEVENS (10 min de Nice)
EXCLUSIVITE !!
Villa moderne et personnalisable Cette villa neuve, située dans un quartier résidentiel calme à Tourrette-Levens, allie design contemporain, volumes optimisés et luminosité grâce à de larges ouvertures. Son architecture soignée et ses espaces bien agencés en font un bien d’exception.
Intérieur fonctionnel et haut de gamme La cuisine, livrée non aménagée, permet une personnalisation totale selon vos besoins. Trois chambres, une salle d’eau.
Extérieur aménageable Chaque villa est construite sur un terrain d’environ 600 m², offrant un espace extérieur à aménager selon vos envies (terrasse,
jardin, etc.).
Performance et confort Conforme à la norme RE2020, cette villa garantit une performance énergétique optimale, un confort thermique toute l’année et une consommation maîtrisée. Un garage privatif et des emplacements de stationnement sont inclus.
Emplacement stratégique À seulement 10 minutes de Nice, ce programme bénéficie d’un accès rapide aux axes routiers, aux commerces et aux services. Idéal pour une résidence principale ou secondaire, ce bien allie qualité de construction et potentiel de valorisation.
actuelles.
Honoraires à la charge du vendeur GRANIT Immobilier - BERMOND Dally Dally - 06 11 16 01 42 - Plus d'informations sur www.granitimmobilier.com (réf. 060061387) Honoraires à la charge du vendeur
* Honoraires charge vendeur.
Pour obtenir le numéro de téléphone de l'agence, remplissez le formulaire de demande de complément d'informations.
- 38
- 53
- Bien
- 43.784046
- 7.2706807
- /images/ggmap-marker.png
- click
-
Maison mitoyenneTOURRETTE LEVENS - 90 m²
06690 TOURRETTE-LEVENS
Tel. 04 93 79 87 83
Fax 04 67 70 95 48








