- Ref 73028810
- Ref V LNT / C908
- Type Appartement
- Ville AIX LES BAINS
- Pièces 3
- Chambres 2
- Surface 75 m²
- Terrain NC
- Prix :
584 900 € *
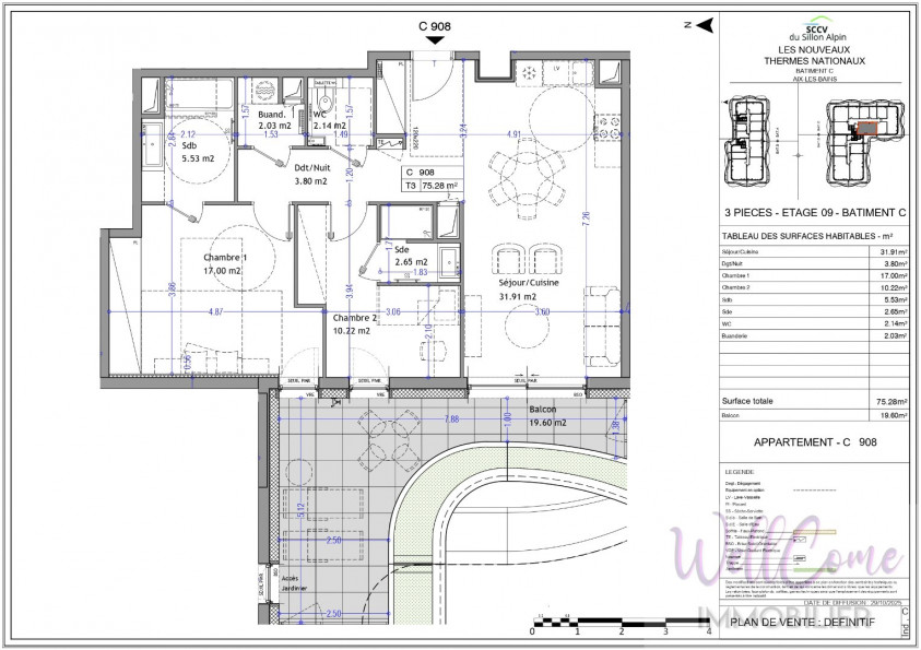
À Aix-les-Bains, dans la prestigieuse résidence « Les Nouveaux Thermes » - Découvrez cet appartement 3 pièces de 75,28m² située au 9ème étage côté Ouest.
Cet appartement haut de gamme comprend : pièce de vie de 31,91 m² accueillant séjour cuisine et prolongée par un balcon végétalisé de 19,60 m² côté Ouest.
L’espace nuit comprend 2 chambres dont une suite parentale avec salle d’eau, une salle de bains, un WC indépendant et une buanderie.
Box en sous-sol sécurisé inclus.
La résidence se distingue par ses prestations premium et son engagement environnemental : façades végétalisées sur 3,5 km, plus de 15 000 plantes, toitures vertes, récupération des eaux pluviales et planchers chauffants/rafraîchissants par géothermie.
Contactez votre agence WellCome Immobilier pour réserver cet appartement d’exception parmi les premiers lots disponibles ! D’autres appartements neufs du T1 au T6 sont également proposés.
Frais de notaire réduits
Programme certifié RE2020 seuil 2022 & NF Habitat HQE
Livraison prévue 1er trimestre 2029
Bien soumis au statut juridique de la copropriété. Nb de lot :219.
* Honoraires charge vendeur.
Pour obtenir le numéro de téléphone de l'agence, remplissez le formulaire de demande de complément d'informations.
- 38
- 53
- Bien
- 45.6883896049
- 5.91618061066
- /images/ggmap-marker.png
- click
-
AppartementAIX LES BAINS - 75 m²
73100 AIX LES BAINS
Tel. 0479524276
Fax 04 67 70 95 48




















