- Ref 73028809
- Ref VLNT / B1001
- Type Appartement
- Ville AIX LES BAINS
- Pièces 3
- Chambres 2
- Surface 68 m²
- Terrain NC
- Prix :
574 000 € *
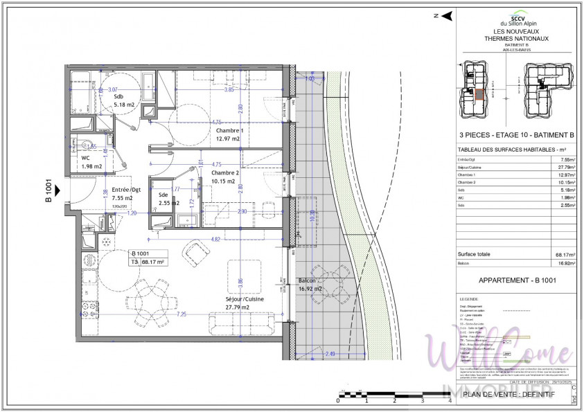
À Aix-les-Bains, dans la prestigieuse résidence « Les Nouveaux Thermes » - Découvrez cet appartement 3 pièces de 68,17m² située au 10ème étage côté Sud du bâtiment Nord.
Cet appartement haut de gamme comprend : entrée/dégagement, séjour cuisine de 27,79m² prolongée par un balcon végétalisé de 16,92 m² côté SUD.
L’espace nuit comprend 2 chambres dont une suite parentale avec salle d’eau, une salle de bains, un WC indépendant.
Place de parking au sous-sol sécurisé inclus.
La résidence se distingue par ses prestations premium et son engagement environnemental : façades végétalisées sur 3,5 km, plus de 15 000 plantes, toitures vertes, récupération des eaux pluviales et planchers chauffants/rafraîchissants par géothermie.
Contactez votre agence WellCome Immobilier pour réserver cet appartement d’exception parmi les premiers lots disponibles ! D’autres appartements neufs du T1 au T6 sont également proposés.
Frais de notaire réduits
Programme certifié RE2020 seuil 2022 & NF Habitat HQE
Livraison prévue au 4ème trimestre 2028 Surface CARREZ : 68.17 m²
Bien soumis au statut juridique de la copropriété. Nb de lot :219.
* Honoraires charge vendeur.
Pour obtenir le numéro de téléphone de l'agence, remplissez le formulaire de demande de complément d'informations.
- 38
- 53
- Bien
- 45.6887193725
- 5.91618061066
- /images/ggmap-marker.png
- click
-
AppartementAIX LES BAINS - 68 m²
73100 AIX LES BAINS
Tel. 0479524276
Fax 04 67 70 95 48


















