- Ref 73028802
- Ref V LNT/C904
- Type Appartement
- Ville AIX LES BAINS
- Pièces 1
- Chambres NC
- Surface 29 m²
- Terrain NC
- Prix :
229 900 € *
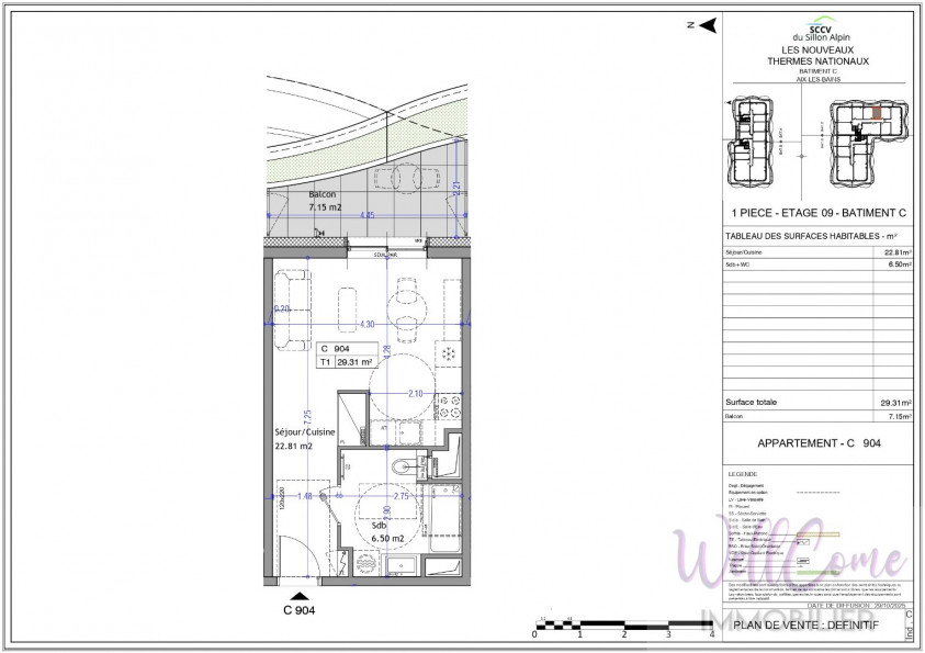
À Aix-les-Bains, dans la prestigieuse résidence « Les Nouveaux Thermes » - Découvrez cet appartement neuf T1 29,31m² située au 9ème étage côté Est.
Cet appartement haut de gamme comprend : hall, séjour-cuisine et prolongée par un balcon végétalisée de 7,15m² orienté Est, une salle de bains avec wc.
La résidence se distingue par ses prestations premium et son engagement environnemental : façades végétalisées sur 3,5 km, plus de 15 000 plantes, toitures vertes, récupération des eaux pluviales et planchers chauffants/rafraîchissants par géothermie.
Contactez votre agence WellCome Immobilier pour réserver cet appartement d’exception parmi les lots disponibles !
Frais de notaire réduits
Programme certifié RE2020 seuil 2022 & NF Habitat HQE
Livraison : 1er Trimestre 2029 Surface CARREZ : 29.31 m²
Bien soumis au statut juridique de la copropriété. Nb de lot :219.
* Honoraires charge vendeur.
Pour obtenir le numéro de téléphone de l'agence, remplissez le formulaire de demande de complément d'informations.
- 38
- 53
- Bien
- 45.6885844678
- 5.9160733223
- /images/ggmap-marker.png
- click
-
AppartementAIX LES BAINS - 29 m²
73100 AIX LES BAINS
Tel. 0479524276
Fax 04 67 70 95 48
















