- Ref 73028761
- Ref V LNT/C503
- Type Appartement
- Ville AIX LES BAINS
- Pièces 2
- Chambres 1
- Surface 40 m²
- Terrain NC
- Prix :
278 000 € *
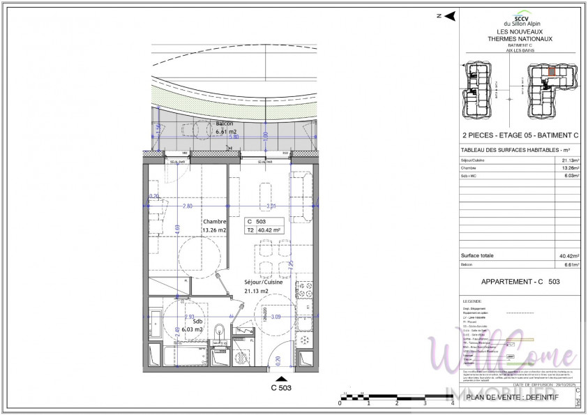
À Aix-les-Bains, dans la prestigieuse résidence « Les Nouveaux Thermes » - Découvrez cet appartement neuf 2 pièces de 40,42m² située au 5ème étage côté Est du bâtiment Sud.
Cet appartement haut de gamme comprend : pièce de vie de 21,13 m² accueillant séjour cuisine et prolongée par un balcon végétalisée de 6,61m² orienté Est. une chambre de 13,26m², une salle de bains avec wc.
Vendu avec 1 stationnement en sous-sol sécurisé.
La résidence se distingue par ses prestations premium et son engagement environnemental : façades végétalisées sur 3,5 km, plus de 15 000 plantes, toitures vertes, récupération des eaux pluviales et planchers chauffants/rafraîchissants par géothermie.
Contactez votre agence WellCome Immobilier pour réserver cet appartement d’exception parmi les premiers lots disponibles ! D’autres appartements neufs du T1 au T6 sont également proposés.
Frais de notaire réduits
Programme certifié RE2020 seuil 2022 & NF Habitat HQE
Livraison 1er trimestre 2029 Surface CARREZ : 40.42 m²
Bien soumis au statut juridique de la copropriété. Nb de lot :219.
* Honoraires charge vendeur.
Pour obtenir le numéro de téléphone de l'agence, remplissez le formulaire de demande de complément d'informations.
- 38
- 53
- Bien
- 45.6884645523
- 5.91613769532
- /images/ggmap-marker.png
- click
-
AppartementAIX LES BAINS - 40 m²
73100 AIX LES BAINS
Tel. 0479524276
Fax 04 67 70 95 48




















